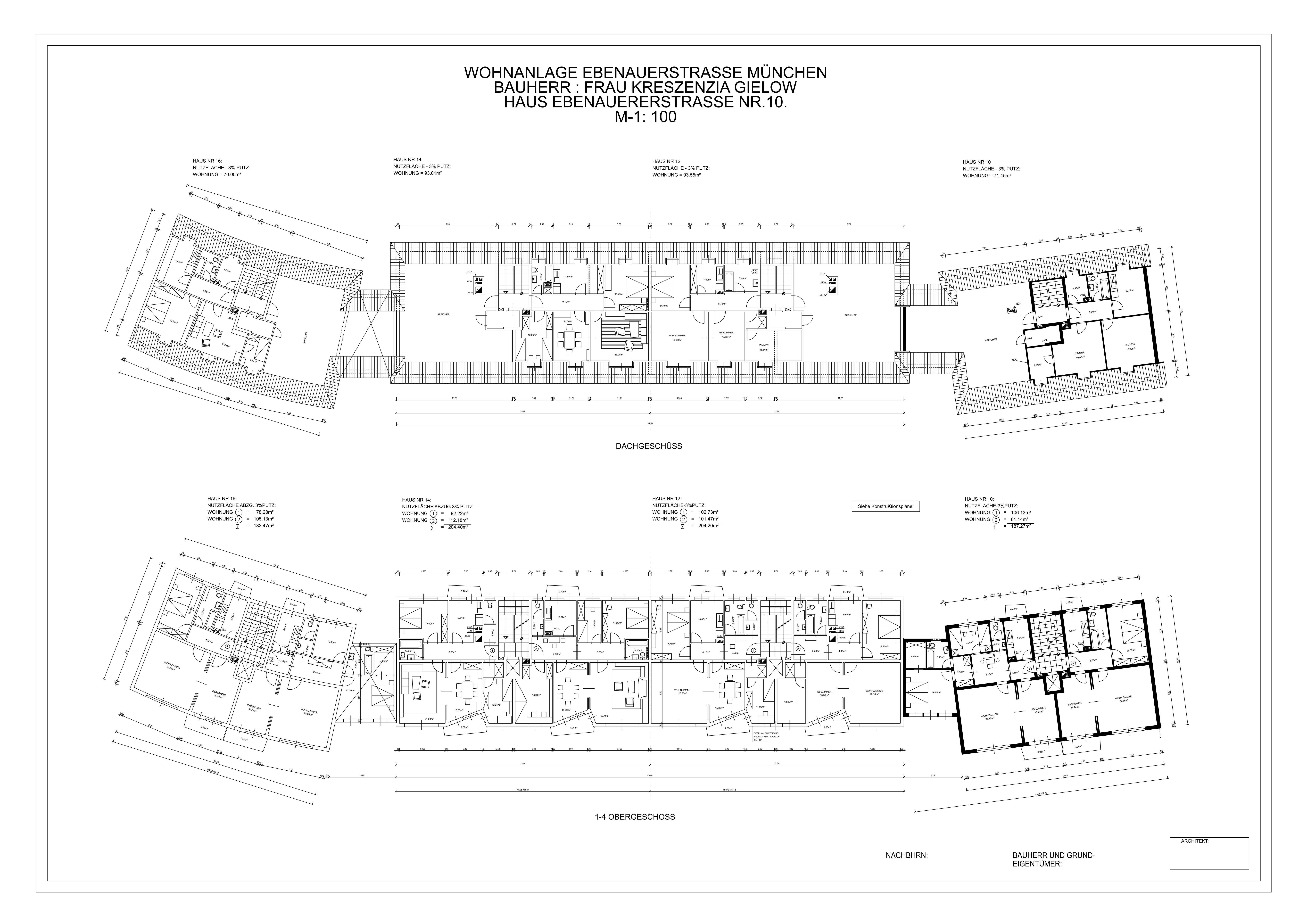
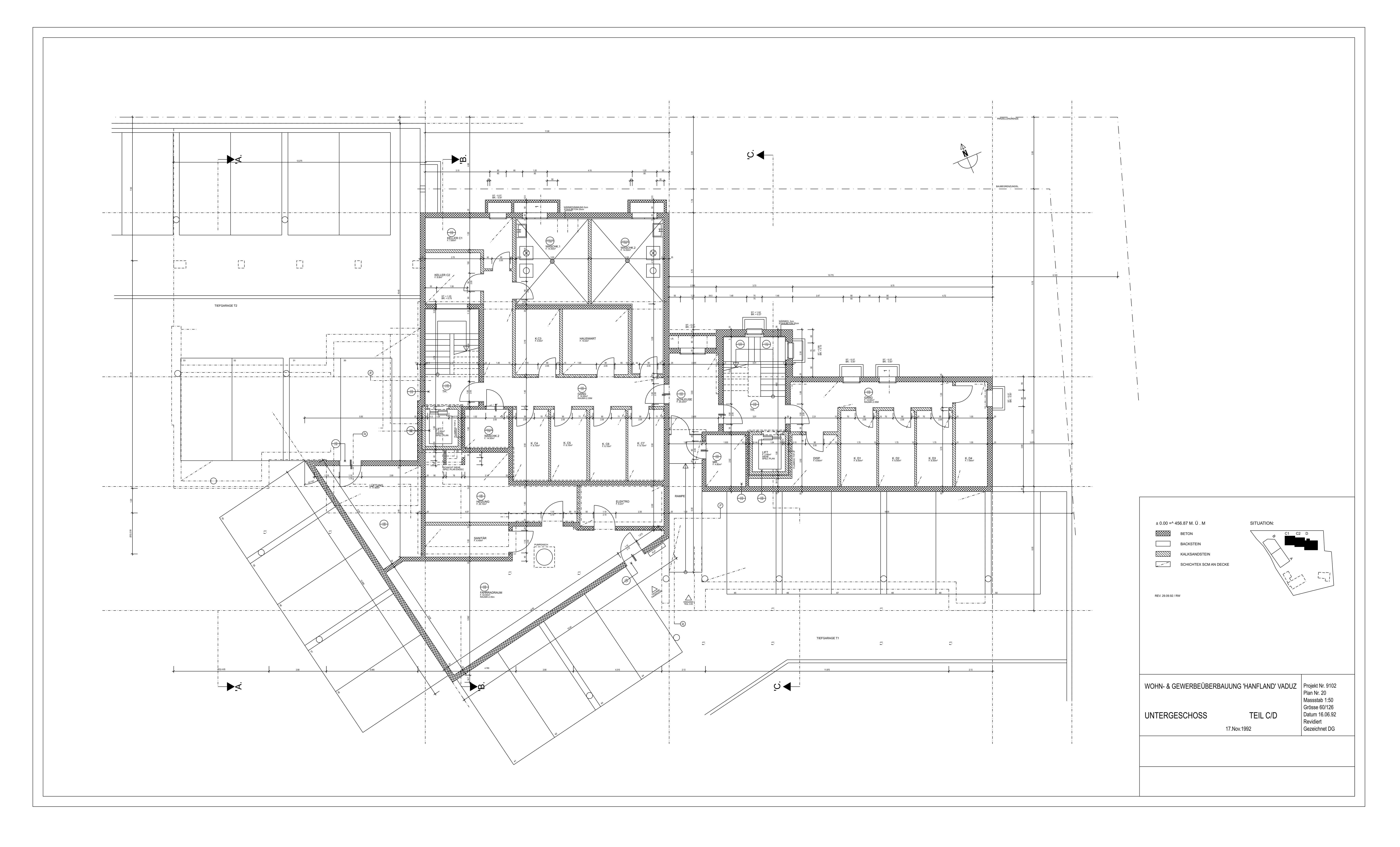
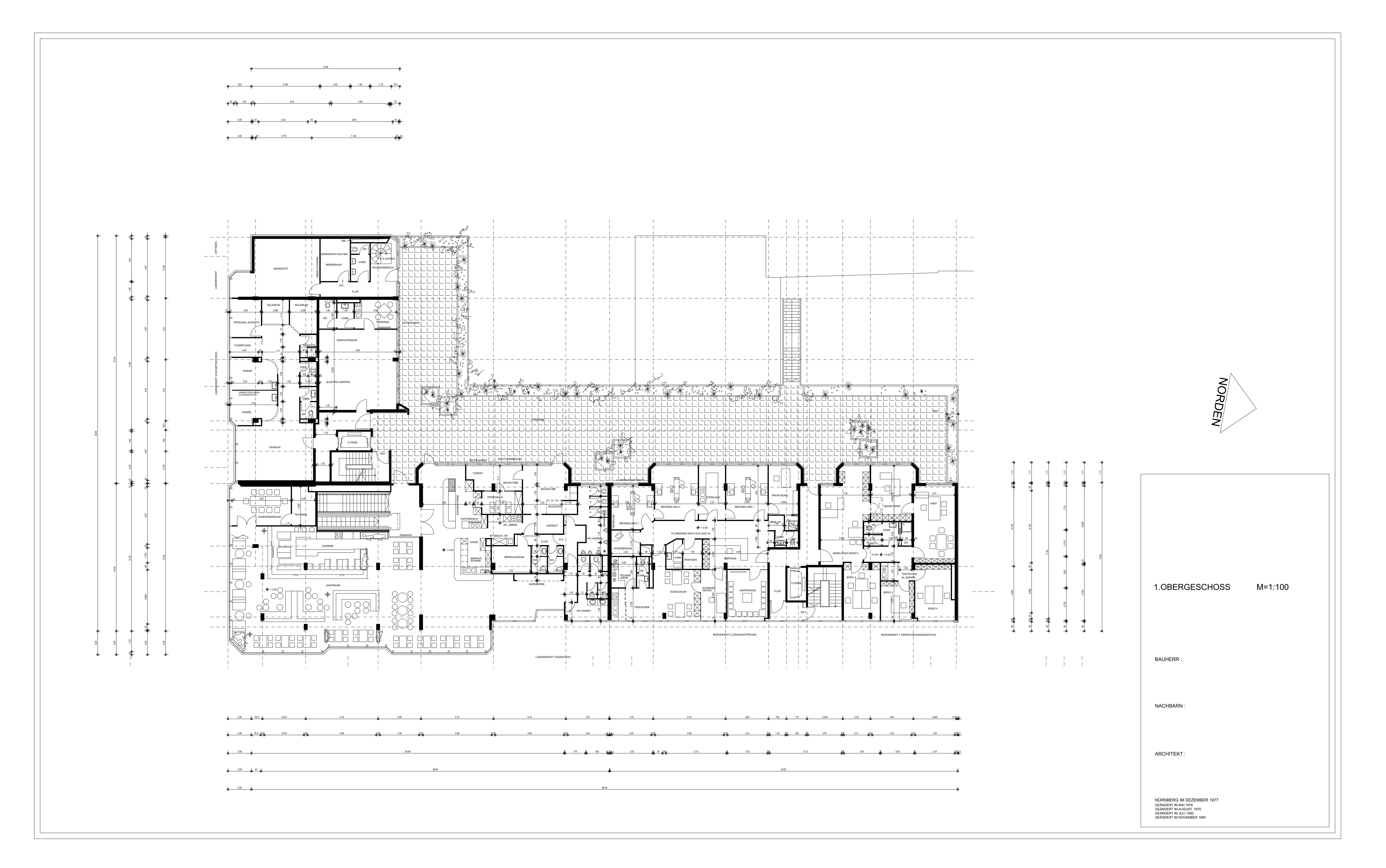
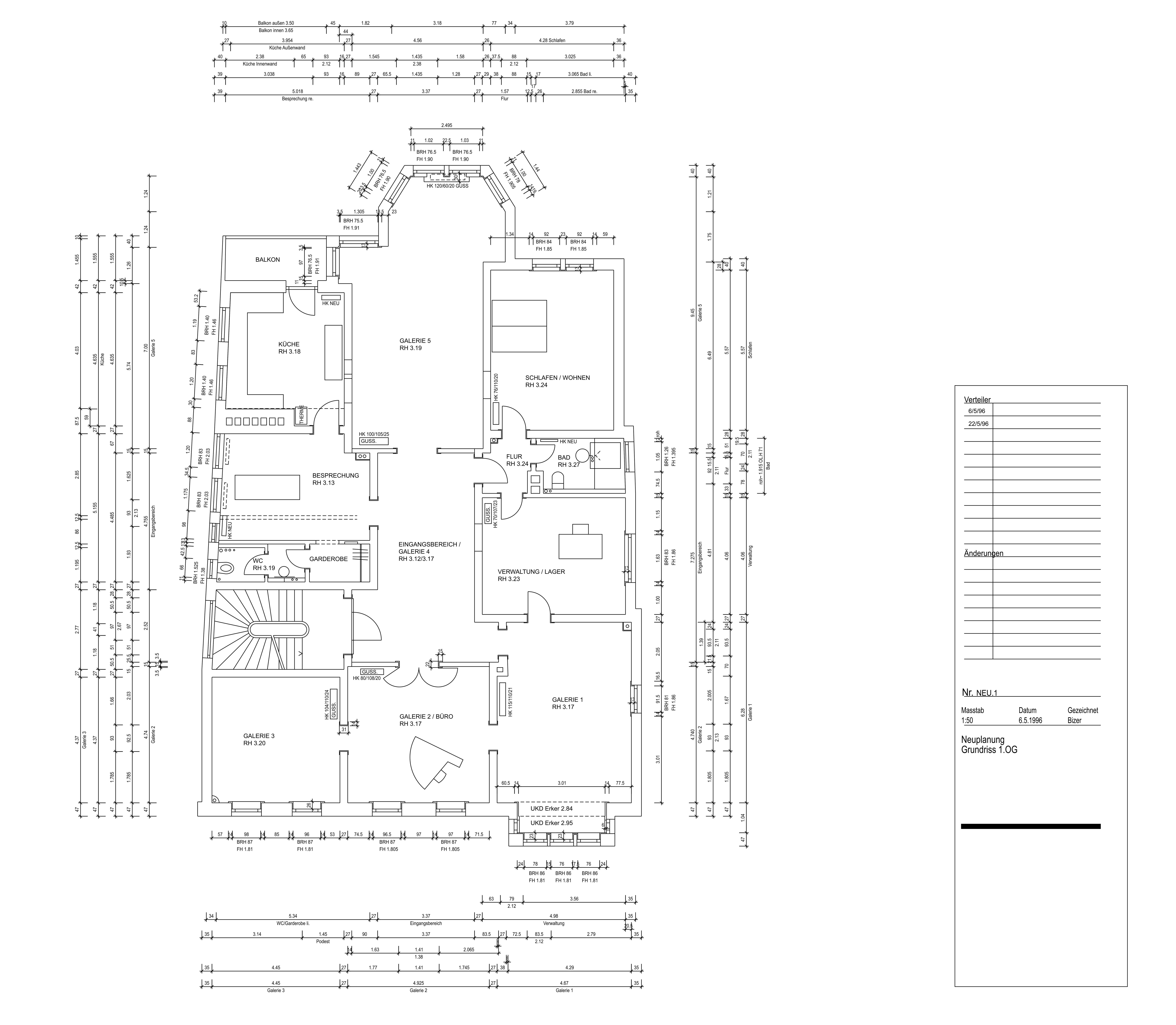
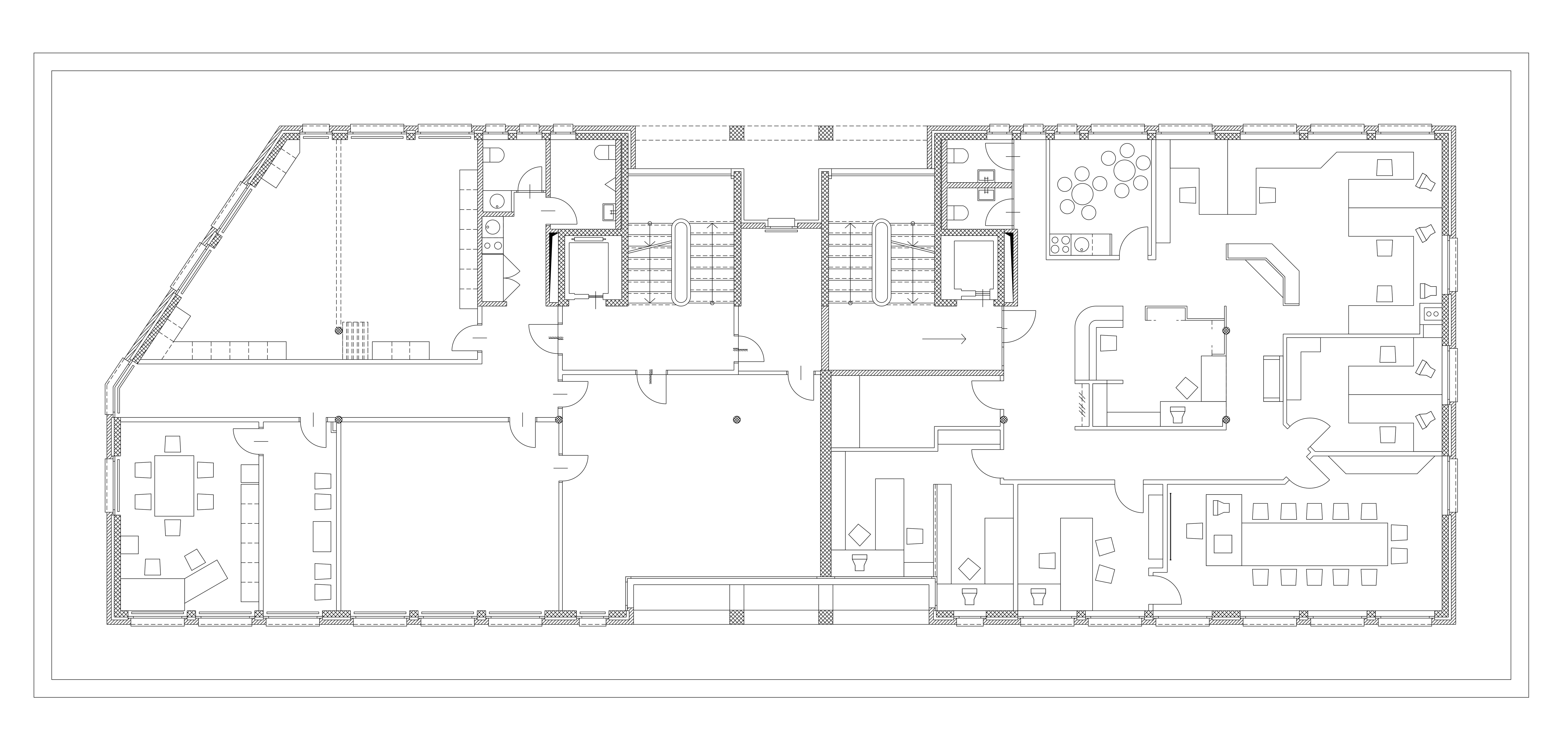
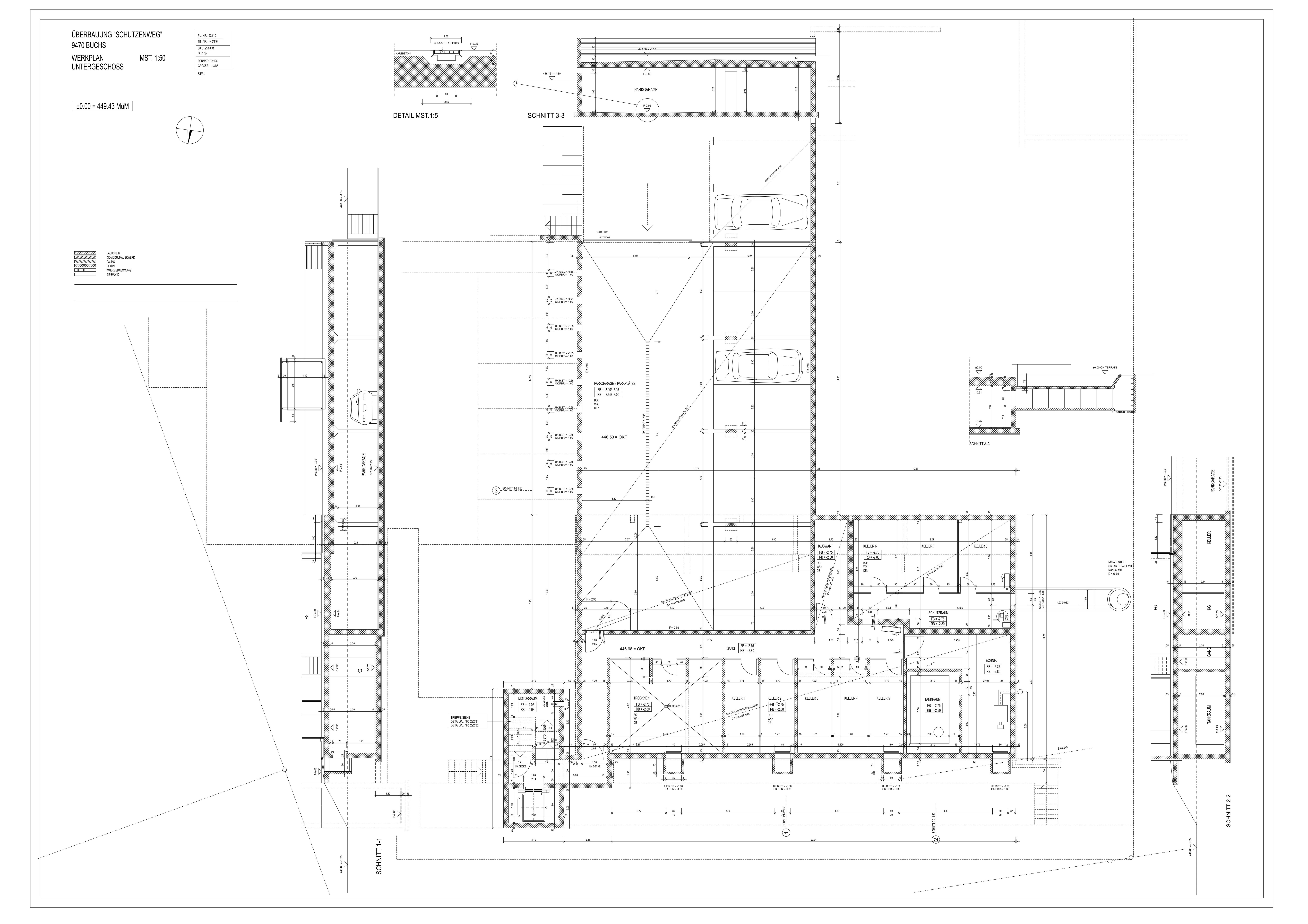
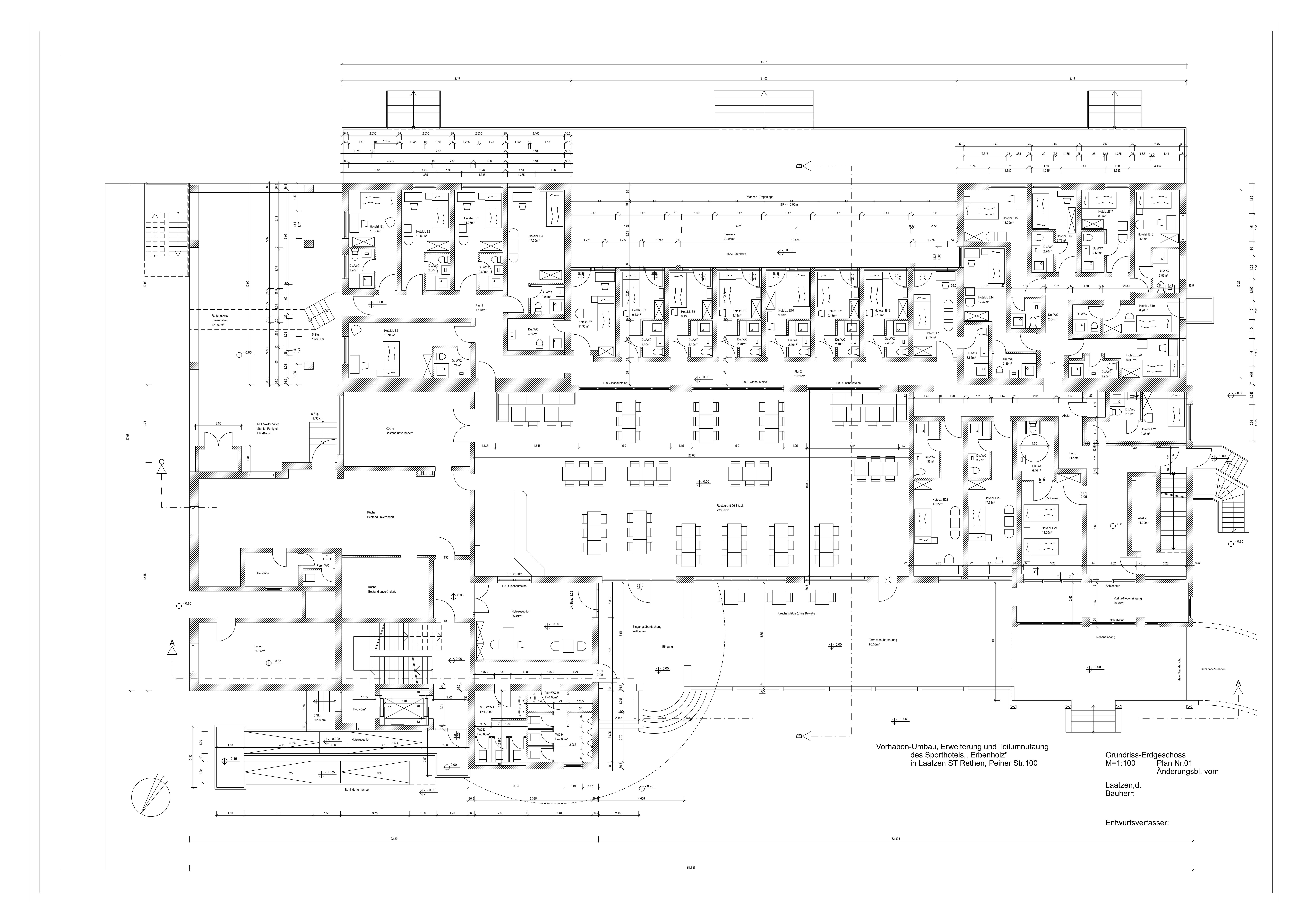
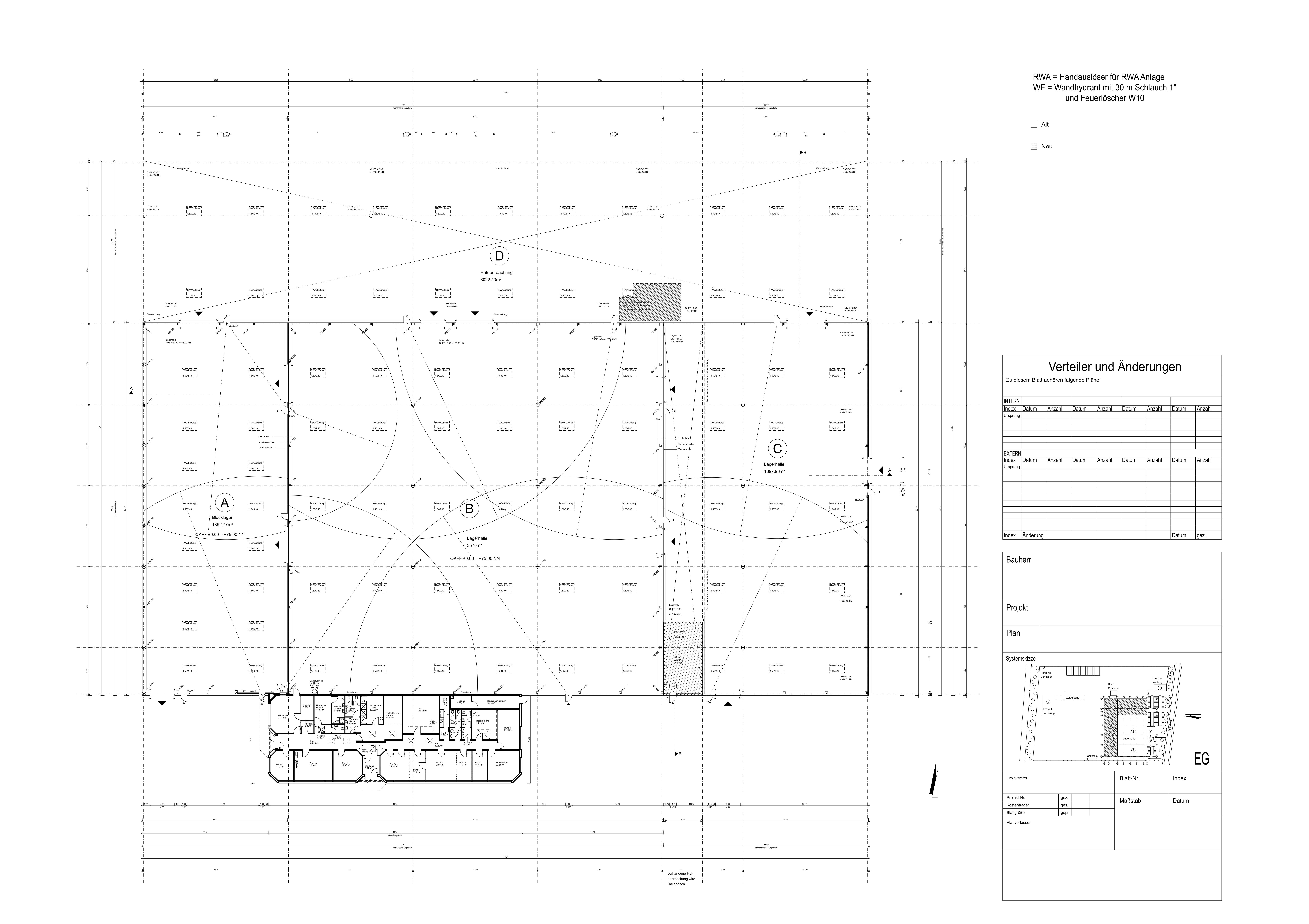
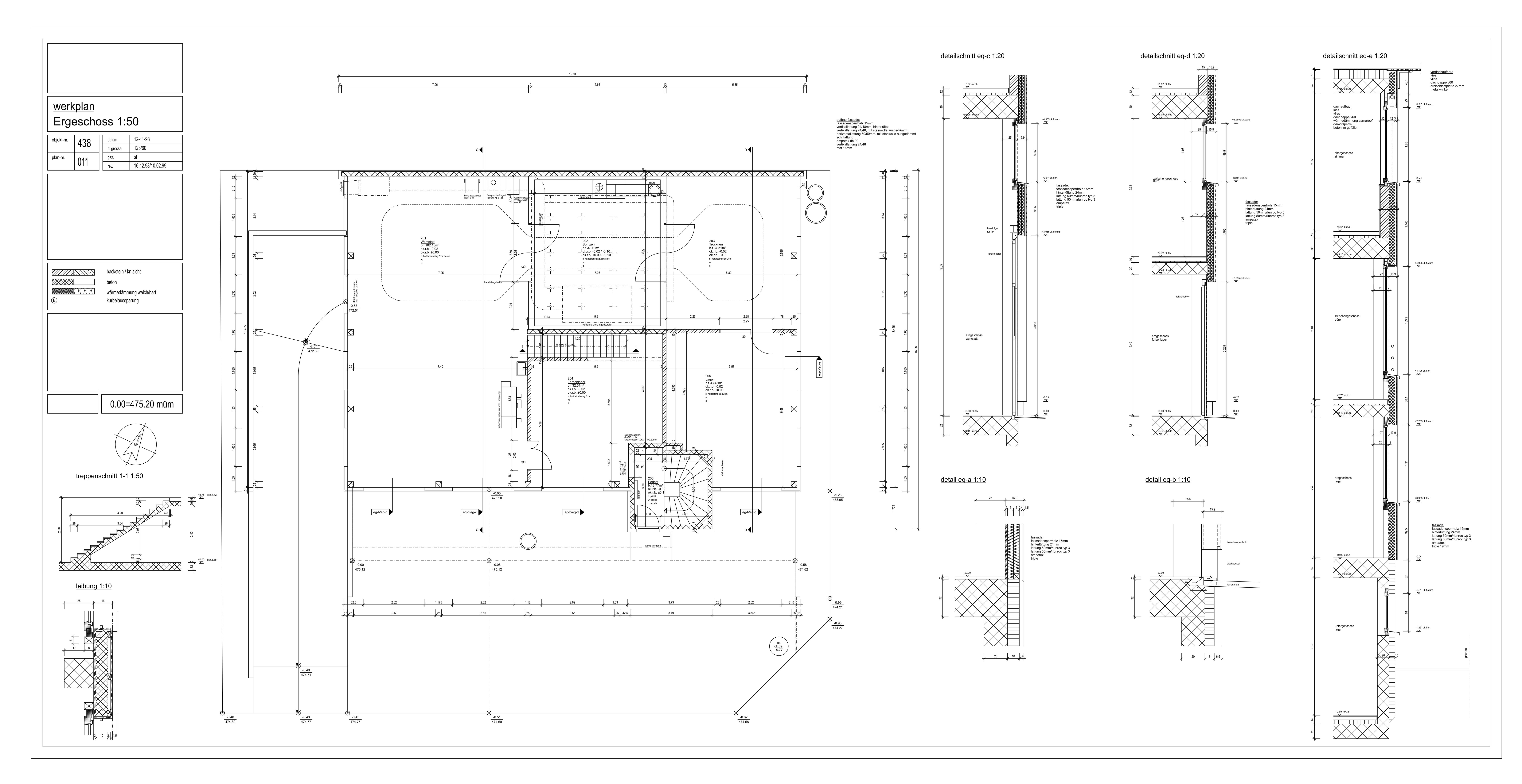
Floor Plan
2D Floor plan
3D Floor Plan
Services
CAD Vectorization & Digitization
3D Scan to CAD
GIS and Utility Mapping
3D Scan to 3D Model
3D Visualization
Reference
CAD Vectorization & Digitization
3D Scan to CAD
GIS and Utility Mapping
3D Scan to 3D Model
3D Visualization
About Us
Contact Us
Login
Register
CAD Vectorization & Digitization
CAD Vectorization
CAD Vectorization
CAD Vectorization
CAD Vectorization
CAD Vectorization
CAD Vectorization
CAD Vectorization
CAD Vectorization
CAD Vectorization
CAD Vectorization
CAD Vectorization
CAD Vectorization
CAD Vectorization
CAD Vectorization
CAD Vectorization
×
Login
Registration
Remember me
Forgot Password?
Login
Email Resent Link
Country
Afghanistan
Albania
Algeria
American Samoa
Andorra
Angola
Anguilla
Antarctica
Antigua And Barbuda
Argentina
Armenia
Aruba
Australia
Austria
Azerbaijan
Bahamas The
Bahrain
Bangladesh
Barbados
Belarus
Belgium
Belize
Benin
Bermuda
Bhutan
Bolivia
Bosnia and Herzegovina
Botswana
Bouvet Island
Brazil
British Indian Ocean Territory
Brunei
Bulgaria
Burkina Faso
Burundi
Cambodia
Cameroon
Canada
Cape Verde
Cayman Islands
Central African Republic
Chad
Chile
China
Christmas Island
Cocos (Keeling) Islands
Colombia
Comoros
Republic Of The Congo
Democratic Republic Of The Congo
Cook Islands
Costa Rica
Cote D'Ivoire (Ivory Coast)
Croatia (Hrvatska)
Cuba
Cyprus
Czech Republic
Denmark
Djibouti
Dominica
Dominican Republic
East Timor
Ecuador
Egypt
El Salvador
Equatorial Guinea
Eritrea
Estonia
Ethiopia
External Territories of Australia
Falkland Islands
Faroe Islands
Fiji Islands
Finland
France
French Guiana
French Polynesia
French Southern Territories
Gabon
Gambia The
Georgia
Germany
Ghana
Gibraltar
Greece
Greenland
Grenada
Guadeloupe
Guam
Guatemala
Guernsey and Alderney
Guinea
Guinea-Bissau
Guyana
Haiti
Heard and McDonald Islands
Honduras
Hong Kong S.A.R.
Hungary
Iceland
India
Indonesia
Iran
Iraq
Ireland
Israel
Italy
Jamaica
Japan
Jersey
Jordan
Kazakhstan
Kenya
Kiribati
Korea North
Korea South
Kuwait
Kyrgyzstan
Laos
Latvia
Lebanon
Lesotho
Liberia
Libya
Liechtenstein
Lithuania
Luxembourg
Macau S.A.R.
Macedonia
Madagascar
Malawi
Malaysia
Maldives
Mali
Malta
Man (Isle of)
Marshall Islands
Martinique
Mauritania
Mauritius
Mayotte
Mexico
Micronesia
Moldova
Monaco
Mongolia
Montserrat
Morocco
Mozambique
Myanmar
Namibia
Nauru
Nepal
Netherlands Antilles
Netherlands The
New Caledonia
New Zealand
Nicaragua
Niger
Nigeria
Niue
Norfolk Island
Northern Mariana Islands
Norway
Oman
Pakistan
Palau
Palestinian Territory Occupied
Panama
Papua new Guinea
Paraguay
Peru
Philippines
Pitcairn Island
Poland
Portugal
Puerto Rico
Qatar
Reunion
Romania
Russia
Rwanda
Saint Helena
Saint Kitts And Nevis
Saint Lucia
Saint Pierre and Miquelon
Saint Vincent And The Grenadines
Samoa
San Marino
Sao Tome and Principe
Saudi Arabia
Senegal
Serbia
Seychelles
Sierra Leone
Singapore
Slovakia
Slovenia
Smaller Territories of the UK
Solomon Islands
Somalia
South Africa
South Georgia
South Sudan
Spain
Sri Lanka
Sudan
Suriname
Svalbard And Jan Mayen Islands
Swaziland
Sweden
Switzerland
Syria
Taiwan
Tajikistan
Tanzania
Thailand
Togo
Tokelau
Tonga
Trinidad And Tobago
Tunisia
Turkey
Turkmenistan
Turks And Caicos Islands
Tuvalu
Uganda
Ukraine
United Arab Emirates
United Kingdom
United States
United States Minor Outlying Islands
Uruguay
Uzbekistan
Vanuatu
Vatican City State (Holy See)
Venezuela
Vietnam
Virgin Islands (British)
Virgin Islands (US)
Wallis And Futuna Islands
Western Sahara
Yemen
Yugoslavia
Zambia
Zimbabwe
State
Andaman and Nicobar Islands
Andhra Pradesh
Arunachal Pradesh
Assam
Bihar
Chandigarh
Chhattisgarh
Dadra and Nagar Haveli
Daman and Diu
Delhi
Goa
Gujarat
Haryana
Himachal Pradesh
Jammu and Kashmir
Jharkhand
Karnataka
Kenmore
Kerala
Lakshadweep
Madhya Pradesh
Maharashtra
Manipur
Meghalaya
Mizoram
Nagaland
Narora
Natwar
Odisha
Paschim Medinipur
Pondicherry
Punjab
Rajasthan
Sikkim
Tamil Nadu
Telangana
Tripura
Uttar Pradesh
Uttarakhand
Vaishali
West Bengal
Badakhshan
Badgis
Baglan
Balkh
Bamiyan
Farah
Faryab
Gawr
Gazni
Herat
Hilmand
Jawzjan
Kabul
Kapisa
Khawst
Kunar
Lagman
Lawghar
Nangarhar
Nimruz
Nuristan
Paktika
Paktiya
Parwan
Qandahar
Qunduz
Samangan
Sar-e Pul
Takhar
Uruzgan
Wardag
Zabul
Berat
Bulqize
Delvine
Devoll
Dibre
Durres
Elbasan
Fier
Gjirokaster
Gramsh
Has
Kavaje
Kolonje
Korce
Kruje
Kucove
Kukes
Kurbin
Lezhe
Librazhd
Lushnje
Mallakaster
Malsi e Madhe
Mat
Mirdite
Peqin
Permet
Pogradec
Puke
Sarande
Shkoder
Skrapar
Tepelene
Tirane
Tropoje
Vlore
'Ayn Daflah
'Ayn Tamushanat
Adrar
Algiers
Annabah
Bashshar
Batnah
Bijayah
Biskrah
Blidah
Buirah
Bumardas
Burj Bu Arririj
Ghalizan
Ghardayah
Ilizi
Jijili
Jilfah
Khanshalah
Masilah
Midyah
Milah
Muaskar
Mustaghanam
Naama
Oran
Ouargla
Qalmah
Qustantinah
Sakikdah
Satif
Sayda'
Sidi ban-al-'Abbas
Suq Ahras
Tamanghasat
Tibazah
Tibissah
Tilimsan
Tinduf
Tisamsilt
Tiyarat
Tizi Wazu
Umm-al-Bawaghi
Wahran
Warqla
Wilaya d Alger
Wilaya de Bejaia
Wilaya de Constantine
al-Aghwat
al-Bayadh
al-Jaza'ir
al-Wad
ash-Shalif
at-Tarif
Eastern
Manu'a
Swains Island
Western
Andorra la Vella
Canillo
Encamp
La Massana
Les Escaldes
Ordino
Sant Julia de Loria
Bengo
Benguela
Bie
Cabinda
Cunene
Huambo
Huila
Kuando-Kubango
Kwanza Norte
Kwanza Sul
Luanda
Lunda Norte
Lunda Sul
Malanje
Moxico
Namibe
Uige
Zaire
Other Provinces
Sector claimed by Argentina/Ch
Sector claimed by Argentina/UK
Sector claimed by Australia
Sector claimed by France
Sector claimed by New Zealand
Sector claimed by Norway
Unclaimed Sector
Barbuda
Saint George
Saint John
Saint Mary
Saint Paul
Saint Peter
Saint Philip
Buenos Aires
Catamarca
Chaco
Chubut
Cordoba
Corrientes
Distrito Federal
Entre Rios
Formosa
Jujuy
La Pampa
La Rioja
Mendoza
Misiones
Neuquen
Rio Negro
Salta
San Juan
San Luis
Santa Cruz
Santa Fe
Santiago del Estero
Tierra del Fuego
Tucuman
Aragatsotn
Ararat
Armavir
Gegharkunik
Kotaik
Lori
Shirak
Stepanakert
Syunik
Tavush
Vayots Dzor
Yerevan
Aruba
Auckland
Australian Capital Territory
Balgowlah
Balmain
Bankstown
Baulkham Hills
Bonnet Bay
Camberwell
Carole Park
Castle Hill
Caulfield
Chatswood
Cheltenham
Cherrybrook
Clayton
Collingwood
Frenchs Forest
Hawthorn
Jannnali
Knoxfield
Melbourne
New South Wales
Northern Territory
Perth
Queensland
South Australia
Tasmania
Templestowe
Victoria
Werribee south
Western Australia
Wheeler
Bundesland Salzburg
Bundesland Steiermark
Bundesland Tirol
Burgenland
Carinthia
Karnten
Liezen
Lower Austria
Niederosterreich
Oberosterreich
Salzburg
Schleswig-Holstein
Steiermark
Styria
Tirol
Upper Austria
Vorarlberg
Wien
Abseron
Baki Sahari
Ganca
Ganja
Kalbacar
Lankaran
Mil-Qarabax
Mugan-Salyan
Nagorni-Qarabax
Naxcivan
Priaraks
Qazax
Saki
Sirvan
Xacmaz
Abaco
Acklins Island
Andros
Berry Islands
Biminis
Cat Island
Crooked Island
Eleuthera
Exuma and Cays
Grand Bahama
Inagua Islands
Long Island
Mayaguana
New Providence
Ragged Island
Rum Cay
San Salvador
'Isa
Badiyah
Hidd
Jidd Hafs
Mahama
Manama
Sitrah
al-Manamah
al-Muharraq
ar-Rifa'a
Bagar Hat
Bandarban
Barguna
Barisal
Bhola
Bogora
Brahman Bariya
Chandpur
Chattagam
Chittagong Division
Chuadanga
Dhaka
Dinajpur
Faridpur
Feni
Gaybanda
Gazipur
Gopalganj
Habiganj
Jaipur Hat
Jamalpur
Jessor
Jhalakati
Jhanaydah
Khagrachhari
Khulna
Kishorganj
Koks Bazar
Komilla
Kurigram
Kushtiya
Lakshmipur
Lalmanir Hat
Madaripur
Magura
Maimansingh
Manikganj
Maulvi Bazar
Meherpur
Munshiganj
Naral
Narayanganj
Narsingdi
Nator
Naugaon
Nawabganj
Netrakona
Nilphamari
Noakhali
Pabna
Panchagarh
Patuakhali
Pirojpur
Rajbari
Rajshahi
Rangamati
Rangpur
Satkhira
Shariatpur
Sherpur
Silhat
Sirajganj
Sunamganj
Tangayal
Thakurgaon
Christ Church
Saint Andrew
Saint George
Saint James
Saint John
Saint Joseph
Saint Lucy
Saint Michael
Saint Peter
Saint Philip
Saint Thomas
Brest
Homjel'
Hrodna
Mahiljow
Mahilyowskaya Voblasts
Minsk
Minskaja Voblasts'
Petrik
Vicebsk
Antwerpen
Berchem
Brabant
Brabant Wallon
Brussel
East Flanders
Hainaut
Liege
Limburg
Luxembourg
Namur
Ontario
Oost-Vlaanderen
Provincie Brabant
Vlaams-Brabant
Wallonne
West-Vlaanderen
Belize
Cayo
Corozal
Orange Walk
Stann Creek
Toledo
Alibori
Atacora
Atlantique
Borgou
Collines
Couffo
Donga
Littoral
Mono
Oueme
Plateau
Zou
Hamilton
Saint George
Bumthang
Chhukha
Chirang
Daga
Geylegphug
Ha
Lhuntshi
Mongar
Pemagatsel
Punakha
Rinpung
Samchi
Samdrup Jongkhar
Shemgang
Tashigang
Timphu
Tongsa
Wangdiphodrang
Beni
Chuquisaca
Cochabamba
La Paz
Oruro
Pando
Potosi
Santa Cruz
Tarija
Federacija Bosna i Hercegovina
Republika Srpska
Central Bobonong
Central Boteti
Central Mahalapye
Central Serowe-Palapye
Central Tutume
Chobe
Francistown
Gaborone
Ghanzi
Jwaneng
Kgalagadi North
Kgalagadi South
Kgatleng
Kweneng
Lobatse
Ngamiland
Ngwaketse
North East
Okavango
Orapa
Selibe Phikwe
South East
Sowa
Bouvet Island
Acre
Alagoas
Amapa
Amazonas
Bahia
Ceara
Distrito Federal
Espirito Santo
Estado de Sao Paulo
Goias
Maranhao
Mato Grosso
Mato Grosso do Sul
Minas Gerais
Para
Paraiba
Parana
Pernambuco
Piaui
Rio Grande do Norte
Rio Grande do Sul
Rio de Janeiro
Rondonia
Roraima
Santa Catarina
Sao Paulo
Sergipe
Tocantins
British Indian Ocean Territory
Belait
Brunei-Muara
Temburong
Tutong
Blagoevgrad
Burgas
Dobrich
Gabrovo
Haskovo
Jambol
Kardzhali
Kjustendil
Lovech
Montana
Oblast Sofiya-Grad
Pazardzhik
Pernik
Pleven
Plovdiv
Razgrad
Ruse
Shumen
Silistra
Sliven
Smoljan
Sofija grad
Sofijska oblast
Stara Zagora
Targovishte
Varna
Veliko Tarnovo
Vidin
Vraca
Yablaniza
Bale
Bam
Bazega
Bougouriba
Boulgou
Boulkiemde
Comoe
Ganzourgou
Gnagna
Gourma
Houet
Ioba
Kadiogo
Kenedougou
Komandjari
Kompienga
Kossi
Kouritenga
Kourweogo
Leraba
Mouhoun
Nahouri
Namentenga
Noumbiel
Oubritenga
Oudalan
Passore
Poni
Sanguie
Sanmatenga
Seno
Sissili
Soum
Sourou
Tapoa
Tuy
Yatenga
Zondoma
Zoundweogo
Bubanza
Bujumbura
Bururi
Cankuzo
Cibitoke
Gitega
Karuzi
Kayanza
Kirundo
Makamba
Muramvya
Muyinga
Ngozi
Rutana
Ruyigi
Banteay Mean Chey
Bat Dambang
Kampong Cham
Kampong Chhnang
Kampong Spoeu
Kampong Thum
Kampot
Kandal
Kaoh Kong
Kracheh
Krong Kaeb
Krong Pailin
Krong Preah Sihanouk
Mondol Kiri
Otdar Mean Chey
Phnum Penh
Pousat
Preah Vihear
Prey Veaeng
Rotanak Kiri
Siem Reab
Stueng Traeng
Svay Rieng
Takaev
Adamaoua
Centre
Est
Littoral
Nord
Nord Extreme
Nordouest
Ouest
Sud
Sudouest
Alberta
British Columbia
Manitoba
New Brunswick
Newfoundland and Labrador
Northwest Territories
Nova Scotia
Nunavut
Ontario
Prince Edward Island
Quebec
Saskatchewan
Yukon
Boavista
Brava
Fogo
Maio
Sal
Santo Antao
Sao Nicolau
Sao Tiago
Sao Vicente
Grand Cayman
Bamingui-Bangoran
Bangui
Basse-Kotto
Haut-Mbomou
Haute-Kotto
Kemo
Lobaye
Mambere-Kadei
Mbomou
Nana-Gribizi
Nana-Mambere
Ombella Mpoko
Ouaka
Ouham
Ouham-Pende
Sangha-Mbaere
Vakaga
Batha
Biltine
Bourkou-Ennedi-Tibesti
Chari-Baguirmi
Guera
Kanem
Lac
Logone Occidental
Logone Oriental
Mayo-Kebbi
Moyen-Chari
Ouaddai
Salamat
Tandjile
Aisen
Antofagasta
Araucania
Atacama
Bio Bio
Coquimbo
Libertador General Bernardo O'
Los Lagos
Magellanes
Maule
Metropolitana
Metropolitana de Santiago
Tarapaca
Valparaiso
Anhui
Aomen
Beijing
Beijing Shi
Chongqing
Fujian
Gansu
Guangdong
Guangxi
Guizhou
Hainan
Hebei
Heilongjiang
Henan
Hubei
Hunan
Jiangsu
Jiangxi
Jilin
Liaoning
Nei Monggol
Ningxia Hui
Qinghai
Shaanxi
Shandong
Shanghai
Shanxi
Sichuan
Tianjin
Xianggang
Xinjiang
Xizang
Yunnan
Zhejiang
Christmas Island
Cocos (Keeling) Islands
Amazonas
Antioquia
Arauca
Atlantico
Bogota
Bolivar
Boyaca
Caldas
Caqueta
Casanare
Cauca
Cesar
Choco
Cordoba
Cundinamarca
Guainia
Guaviare
Huila
La Guajira
Magdalena
Meta
Narino
Norte de Santander
Putumayo
Quindio
Risaralda
San Andres y Providencia
Santander
Sucre
Tolima
Valle del Cauca
Vaupes
Vichada
Mwali
Njazidja
Nzwani
Bouenza
Brazzaville
Cuvette
Kouilou
Lekoumou
Likouala
Niari
Plateaux
Pool
Sangha
Bandundu
Bas-Congo
Equateur
Haut-Congo
Kasai-Occidental
Kasai-Oriental
Katanga
Kinshasa
Maniema
Nord-Kivu
Sud-Kivu
Aitutaki
Atiu
Mangaia
Manihiki
Mauke
Mitiaro
Nassau
Pukapuka
Rakahanga
Rarotonga
Tongareva
Alajuela
Cartago
Guanacaste
Heredia
Limon
Puntarenas
San Jose
Abidjan
Agneby
Bafing
Denguele
Dix-huit Montagnes
Fromager
Haut-Sassandra
Lacs
Lagunes
Marahoue
Moyen-Cavally
Moyen-Comoe
N'zi-Comoe
Sassandra
Savanes
Sud-Bandama
Sud-Comoe
Vallee du Bandama
Worodougou
Zanzan
Bjelovar-Bilogora
Dubrovnik-Neretva
Grad Zagreb
Istra
Karlovac
Koprivnica-Krizhevci
Krapina-Zagorje
Lika-Senj
Medhimurje
Medimurska Zupanija
Osijek-Baranja
Osjecko-Baranjska Zupanija
Pozhega-Slavonija
Primorje-Gorski Kotar
Shibenik-Knin
Sisak-Moslavina
Slavonski Brod-Posavina
Split-Dalmacija
Varazhdin
Virovitica-Podravina
Vukovar-Srijem
Zadar
Zagreb
Camaguey
Ciego de Avila
Cienfuegos
Ciudad de la Habana
Granma
Guantanamo
Habana
Holguin
Isla de la Juventud
La Habana
Las Tunas
Matanzas
Pinar del Rio
Sancti Spiritus
Santiago de Cuba
Villa Clara
Government controlled area
Limassol
Nicosia District
Paphos
Turkish controlled area
Central Bohemian
Frycovice
Jihocesky Kraj
Jihochesky
Jihomoravsky
Karlovarsky
Klecany
Kralovehradecky
Liberecky
Lipov
Moravskoslezsky
Olomoucky
Olomoucky Kraj
Pardubicky
Plzensky
Praha
Rajhrad
Smirice
South Moravian
Straz nad Nisou
Stredochesky
Unicov
Ustecky
Valletta
Velesin
Vysochina
Zlinsky
Arhus
Bornholm
Frederiksborg
Fyn
Hovedstaden
Kobenhavn
Kobenhavns Amt
Kobenhavns Kommune
Nordjylland
Ribe
Ringkobing
Roervig
Roskilde
Roslev
Sjaelland
Soeborg
Sonderjylland
Storstrom
Syddanmark
Toelloese
Vejle
Vestsjalland
Viborg
'Ali Sabih
Dikhil
Jibuti
Tajurah
Ubuk
Saint Andrew
Saint David
Saint George
Saint John
Saint Joseph
Saint Luke
Saint Mark
Saint Patrick
Saint Paul
Saint Peter
Azua
Bahoruco
Barahona
Dajabon
Distrito Nacional
Duarte
El Seybo
Elias Pina
Espaillat
Hato Mayor
Independencia
La Altagracia
La Romana
La Vega
Maria Trinidad Sanchez
Monsenor Nouel
Monte Cristi
Monte Plata
Pedernales
Peravia
Puerto Plata
Salcedo
Samana
San Cristobal
San Juan
San Pedro de Macoris
Sanchez Ramirez
Santiago
Santiago Rodriguez
Valverde
Aileu
Ainaro
Ambeno
Baucau
Bobonaro
Cova Lima
Dili
Ermera
Lautem
Liquica
Manatuto
Manufahi
Viqueque
Azuay
Bolivar
Canar
Carchi
Chimborazo
Cotopaxi
El Oro
Esmeraldas
Galapagos
Guayas
Imbabura
Loja
Los Rios
Manabi
Morona Santiago
Napo
Orellana
Pastaza
Pichincha
Sucumbios
Tungurahua
Zamora Chinchipe
Aswan
Asyut
Bani Suwayf
Bur Sa'id
Cairo
Dumyat
Kafr-ash-Shaykh
Matruh
Muhafazat ad Daqahliyah
Muhafazat al Fayyum
Muhafazat al Gharbiyah
Muhafazat al Iskandariyah
Muhafazat al Qahirah
Qina
Sawhaj
Sina al-Janubiyah
Sina ash-Shamaliyah
ad-Daqahliyah
al-Bahr-al-Ahmar
al-Buhayrah
al-Fayyum
al-Gharbiyah
al-Iskandariyah
al-Ismailiyah
al-Jizah
al-Minufiyah
al-Minya
al-Qahira
al-Qalyubiyah
al-Uqsur
al-Wadi al-Jadid
as-Suways
ash-Sharqiyah
Ahuachapan
Cabanas
Chalatenango
Cuscatlan
La Libertad
La Paz
La Union
Morazan
San Miguel
San Salvador
San Vicente
Santa Ana
Sonsonate
Usulutan
Annobon
Bioko Norte
Bioko Sur
Centro Sur
Kie-Ntem
Litoral
Wele-Nzas
Anseba
Debub
Debub-Keih-Bahri
Gash-Barka
Maekel
Semien-Keih-Bahri
Harju
Hiiu
Ida-Viru
Jarva
Jogeva
Laane
Laane-Viru
Parnu
Polva
Rapla
Saare
Tartu
Valga
Viljandi
Voru
Addis Abeba
Afar
Amhara
Benishangul
Diredawa
Gambella
Harar
Jigjiga
Mekele
Oromia
Somali
Southern
Tigray
Christmas Island
Cocos Islands
Coral Sea Islands
Falkland Islands
South Georgia
Klaksvik
Nor ara Eysturoy
Nor oy
Sandoy
Streymoy
Su uroy
Sy ra Eysturoy
Torshavn
Vaga
Central
Eastern
Northern
South Pacific
Western
Ahvenanmaa
Etela-Karjala
Etela-Pohjanmaa
Etela-Savo
Etela-Suomen Laani
Ita-Suomen Laani
Ita-Uusimaa
Kainuu
Kanta-Hame
Keski-Pohjanmaa
Keski-Suomi
Kymenlaakso
Lansi-Suomen Laani
Lappi
Northern Savonia
Ostrobothnia
Oulun Laani
Paijat-Hame
Pirkanmaa
Pohjanmaa
Pohjois-Karjala
Pohjois-Pohjanmaa
Pohjois-Savo
Saarijarvi
Satakunta
Southern Savonia
Tavastia Proper
Uleaborgs Lan
Uusimaa
Varsinais-Suomi
Ain
Aisne
Albi Le Sequestre
Allier
Alpes-Cote dAzur
Alpes-Maritimes
Alpes-de-Haute-Provence
Alsace
Aquitaine
Ardeche
Ardennes
Ariege
Aube
Aude
Auvergne
Aveyron
Bas-Rhin
Basse-Normandie
Bouches-du-Rhone
Bourgogne
Bretagne
Brittany
Burgundy
Calvados
Cantal
Cedex
Centre
Charente
Charente-Maritime
Cher
Correze
Corse-du-Sud
Cote-d'Or
Cotes-d'Armor
Creuse
Crolles
Deux-Sevres
Dordogne
Doubs
Drome
Essonne
Eure
Eure-et-Loir
Feucherolles
Finistere
Franche-Comte
Gard
Gers
Gironde
Haut-Rhin
Haute-Corse
Haute-Garonne
Haute-Loire
Haute-Marne
Haute-Saone
Haute-Savoie
Haute-Vienne
Hautes-Alpes
Hautes-Pyrenees
Hauts-de-Seine
Herault
Ile-de-France
Ille-et-Vilaine
Indre
Indre-et-Loire
Isere
Jura
Klagenfurt
Landes
Languedoc-Roussillon
Larcay
Le Castellet
Le Creusot
Limousin
Loir-et-Cher
Loire
Loire-Atlantique
Loiret
Lorraine
Lot
Lot-et-Garonne
Lower Normandy
Lozere
Maine-et-Loire
Manche
Marne
Mayenne
Meurthe-et-Moselle
Meuse
Midi-Pyrenees
Morbihan
Moselle
Nievre
Nord
Nord-Pas-de-Calais
Oise
Orne
Paris
Pas-de-Calais
Pays de la Loire
Pays-de-la-Loire
Picardy
Puy-de-Dome
Pyrenees-Atlantiques
Pyrenees-Orientales
Quelmes
Rhone
Rhone-Alpes
Saint Ouen
Saint Viatre
Saone-et-Loire
Sarthe
Savoie
Seine-Maritime
Seine-Saint-Denis
Seine-et-Marne
Somme
Sophia Antipolis
Souvans
Tarn
Tarn-et-Garonne
Territoire de Belfort
Treignac
Upper Normandy
Val-d'Oise
Val-de-Marne
Var
Vaucluse
Vellise
Vendee
Vienne
Vosges
Yonne
Yvelines
Cayenne
Saint-Laurent-du-Maroni
Iles du Vent
Iles sous le Vent
Marquesas
Tuamotu
Tubuai
Amsterdam
Crozet Islands
Kerguelen
Estuaire
Haut-Ogooue
Moyen-Ogooue
Ngounie
Nyanga
Ogooue-Ivindo
Ogooue-Lolo
Ogooue-Maritime
Woleu-Ntem
Banjul
Basse
Brikama
Janjanbureh
Kanifing
Kerewan
Kuntaur
Mansakonko
Abhasia
Ajaria
Guria
Imereti
Kaheti
Kvemo Kartli
Mcheta-Mtianeti
Racha
Samagrelo-Zemo Svaneti
Samche-Zhavaheti
Shida Kartli
Tbilisi
Auvergne
Baden-Wurttemberg
Bavaria
Bayern
Beilstein Wurtt
Berlin
Brandenburg
Bremen
Dreisbach
Freistaat Bayern
Hamburg
Hannover
Heroldstatt
Hessen
Kortenberg
Laasdorf
Land Baden-Wurttemberg
Land Bayern
Land Brandenburg
Land Hessen
Land Mecklenburg-Vorpommern
Land Nordrhein-Westfalen
Land Rheinland-Pfalz
Land Sachsen
Land Sachsen-Anhalt
Land Thuringen
Lower Saxony
Mecklenburg-Vorpommern
Mulfingen
Munich
Neubeuern
Niedersachsen
Noord-Holland
Nordrhein-Westfalen
North Rhine-Westphalia
Osterode
Rheinland-Pfalz
Rhineland-Palatinate
Saarland
Sachsen
Sachsen-Anhalt
Saxony
Schleswig-Holstein
Thuringia
Webling
Weinstrabe
schlobborn
Ashanti
Brong-Ahafo
Central
Eastern
Greater Accra
Northern
Upper East
Upper West
Volta
Western
Gibraltar
Acharnes
Ahaia
Aitolia kai Akarnania
Argolis
Arkadia
Arta
Attica
Attiki
Ayion Oros
Crete
Dodekanisos
Drama
Evia
Evritania
Evros
Evvoia
Florina
Fokis
Fthiotis
Grevena
Halandri
Halkidiki
Hania
Heraklion
Hios
Ilia
Imathia
Ioannina
Iraklion
Karditsa
Kastoria
Kavala
Kefallinia
Kerkira
Kiklades
Kilkis
Korinthia
Kozani
Lakonia
Larisa
Lasithi
Lesvos
Levkas
Magnisia
Messinia
Nomos Attikis
Nomos Zakynthou
Pella
Pieria
Piraios
Preveza
Rethimni
Rodopi
Samos
Serrai
Thesprotia
Thessaloniki
Trikala
Voiotia
West Greece
Xanthi
Zakinthos
Aasiaat
Ammassalik
Illoqqortoormiut
Ilulissat
Ivittuut
Kangaatsiaq
Maniitsoq
Nanortalik
Narsaq
Nuuk
Paamiut
Qaanaaq
Qaqortoq
Qasigiannguit
Qeqertarsuaq
Sisimiut
Udenfor kommunal inddeling
Upernavik
Uummannaq
Carriacou-Petite Martinique
Saint Andrew
Saint Davids
Saint George's
Saint John
Saint Mark
Saint Patrick
Basse-Terre
Grande-Terre
Iles des Saintes
La Desirade
Marie-Galante
Saint Barthelemy
Saint Martin
Agana Heights
Agat
Barrigada
Chalan-Pago-Ordot
Dededo
Hagatna
Inarajan
Mangilao
Merizo
Mongmong-Toto-Maite
Santa Rita
Sinajana
Talofofo
Tamuning
Yigo
Yona
Alta Verapaz
Baja Verapaz
Chimaltenango
Chiquimula
El Progreso
Escuintla
Guatemala
Huehuetenango
Izabal
Jalapa
Jutiapa
Peten
Quezaltenango
Quiche
Retalhuleu
Sacatepequez
San Marcos
Santa Rosa
Solola
Suchitepequez
Totonicapan
Zacapa
Alderney
Castel
Forest
Saint Andrew
Saint Martin
Saint Peter Port
Saint Pierre du Bois
Saint Sampson
Saint Saviour
Sark
Torteval
Vale
Beyla
Boffa
Boke
Conakry
Coyah
Dabola
Dalaba
Dinguiraye
Faranah
Forecariah
Fria
Gaoual
Gueckedou
Kankan
Kerouane
Kindia
Kissidougou
Koubia
Koundara
Kouroussa
Labe
Lola
Macenta
Mali
Mamou
Mandiana
Nzerekore
Pita
Siguiri
Telimele
Tougue
Yomou
Bafata
Bissau
Bolama
Cacheu
Gabu
Oio
Quinara
Tombali
Barima-Waini
Cuyuni-Mazaruni
Demerara-Mahaica
East Berbice-Corentyne
Essequibo Islands-West Demerar
Mahaica-Berbice
Pomeroon-Supenaam
Potaro-Siparuni
Upper Demerara-Berbice
Upper Takutu-Upper Essequibo
Artibonite
Centre
Grand'Anse
Nord
Nord-Est
Nord-Ouest
Ouest
Sud
Sud-Est
Heard and McDonald Islands
Atlantida
Choluteca
Colon
Comayagua
Copan
Cortes
Distrito Central
El Paraiso
Francisco Morazan
Gracias a Dios
Intibuca
Islas de la Bahia
La Paz
Lempira
Ocotepeque
Olancho
Santa Barbara
Valle
Yoro
Hong Kong
Bacs-Kiskun
Baranya
Bekes
Borsod-Abauj-Zemplen
Budapest
Csongrad
Fejer
Gyor-Moson-Sopron
Hajdu-Bihar
Heves
Jasz-Nagykun-Szolnok
Komarom-Esztergom
Nograd
Pest
Somogy
Szabolcs-Szatmar-Bereg
Tolna
Vas
Veszprem
Zala
Austurland
Gullbringusysla
Hofu borgarsva i
Nor urland eystra
Nor urland vestra
Su urland
Su urnes
Vestfir ir
Vesturland
Aceh
Bali
Bangka-Belitung
Banten
Bengkulu
Gandaria
Gorontalo
Jakarta
Jambi
Jawa Barat
Jawa Tengah
Jawa Timur
Kalimantan Barat
Kalimantan Selatan
Kalimantan Tengah
Kalimantan Timur
Kendal
Lampung
Maluku
Maluku Utara
Nusa Tenggara Barat
Nusa Tenggara Timur
Papua
Riau
Riau Kepulauan
Solo
Sulawesi Selatan
Sulawesi Tengah
Sulawesi Tenggara
Sulawesi Utara
Sumatera Barat
Sumatera Selatan
Sumatera Utara
Yogyakarta
Ardabil
Azarbayjan-e Bakhtari
Azarbayjan-e Khavari
Bushehr
Chahar Mahal-e Bakhtiari
Esfahan
Fars
Gilan
Golestan
Hamadan
Hormozgan
Ilam
Kerman
Kermanshah
Khorasan
Khuzestan
Kohgiluyeh-e Boyerahmad
Kordestan
Lorestan
Markazi
Mazandaran
Ostan-e Esfahan
Qazvin
Qom
Semnan
Sistan-e Baluchestan
Tehran
Yazd
Zanjan
Babil
Baghdad
Dahuk
Dhi Qar
Diyala
Erbil
Irbil
Karbala
Kurdistan
Maysan
Ninawa
Salah-ad-Din
Wasit
al-Anbar
al-Basrah
al-Muthanna
al-Qadisiyah
an-Najaf
as-Sulaymaniyah
at-Ta'mim
Armagh
Carlow
Cavan
Clare
Cork
Donegal
Dublin
Galway
Kerry
Kildare
Kilkenny
Laois
Leinster
Leitrim
Limerick
Loch Garman
Longford
Louth
Mayo
Meath
Monaghan
Offaly
Roscommon
Sligo
Tipperary North Riding
Tipperary South Riding
Ulster
Waterford
Westmeath
Wexford
Wicklow
Beit Hanania
Ben Gurion Airport
Bethlehem
Caesarea
Centre
Gaza
Hadaron
Haifa District
Hamerkaz
Hazafon
Hebron
Jaffa
Jerusalem
Khefa
Kiryat Yam
Lower Galilee
Qalqilya
Talme Elazar
Tel Aviv
Tsafon
Umm El Fahem
Yerushalayim
Abruzzi
Abruzzo
Agrigento
Alessandria
Ancona
Arezzo
Ascoli Piceno
Asti
Avellino
Bari
Basilicata
Belluno
Benevento
Bergamo
Biella
Bologna
Bolzano
Brescia
Brindisi
Calabria
Campania
Cartoceto
Caserta
Catania
Chieti
Como
Cosenza
Cremona
Cuneo
Emilia-Romagna
Ferrara
Firenze
Florence
Forli-Cesena
Friuli-Venezia Giulia
Frosinone
Genoa
Gorizia
L'Aquila
Lazio
Lecce
Lecco
Liguria
Lodi
Lombardia
Lombardy
Macerata
Mantova
Marche
Messina
Milan
Modena
Molise
Molteno
Montenegro
Monza and Brianza
Naples
Novara
Padova
Parma
Pavia
Perugia
Pesaro-Urbino
Piacenza
Piedmont
Piemonte
Pisa
Pordenone
Potenza
Puglia
Reggio Emilia
Rimini
Roma
Salerno
Sardegna
Sassari
Savona
Sicilia
Siena
Sondrio
South Tyrol
Taranto
Teramo
Torino
Toscana
Trapani
Trentino-Alto Adige
Trento
Treviso
Udine
Umbria
Valle d'Aosta
Varese
Veneto
Venezia
Verbano-Cusio-Ossola
Vercelli
Verona
Vicenza
Viterbo
Buxoro Viloyati
Clarendon
Hanover
Kingston
Manchester
Portland
Saint Andrews
Saint Ann
Saint Catherine
Saint Elizabeth
Saint James
Saint Mary
Saint Thomas
Trelawney
Westmoreland
Aichi
Akita
Aomori
Chiba
Ehime
Fukui
Fukuoka
Fukushima
Gifu
Gumma
Hiroshima
Hokkaido
Hyogo
Ibaraki
Ishikawa
Iwate
Kagawa
Kagoshima
Kanagawa
Kanto
Kochi
Kumamoto
Kyoto
Mie
Miyagi
Miyazaki
Nagano
Nagasaki
Nara
Niigata
Oita
Okayama
Okinawa
Osaka
Saga
Saitama
Shiga
Shimane
Shizuoka
Tochigi
Tokushima
Tokyo
Tottori
Toyama
Wakayama
Yamagata
Yamaguchi
Yamanashi
Grouville
Saint Brelade
Saint Clement
Saint Helier
Saint John
Saint Lawrence
Saint Martin
Saint Mary
Saint Peter
Saint Saviour
Trinity
'Ajlun
Amman
Irbid
Jarash
Ma'an
Madaba
al-'Aqabah
al-Balqa'
al-Karak
al-Mafraq
at-Tafilah
az-Zarqa'
Akmecet
Akmola
Aktobe
Almati
Atirau
Batis Kazakstan
Burlinsky Region
Karagandi
Kostanay
Mankistau
Ontustik Kazakstan
Pavlodar
Sigis Kazakstan
Soltustik Kazakstan
Taraz
Central
Coast
Eastern
Nairobi
North Eastern
Nyanza
Rift Valley
Western
Abaiang
Abemana
Aranuka
Arorae
Banaba
Beru
Butaritari
Kiritimati
Kuria
Maiana
Makin
Marakei
Nikunau
Nonouti
Onotoa
Phoenix Islands
Tabiteuea North
Tabiteuea South
Tabuaeran
Tamana
Tarawa North
Tarawa South
Teraina
Chagangdo
Hamgyeongbukto
Hamgyeongnamdo
Hwanghaebukto
Hwanghaenamdo
Kaeseong
Kangweon
Nampo
Pyeonganbukto
Pyeongannamdo
Pyeongyang
Yanggang
Busan
Cheju
Chollabuk
Chollanam
Chungbuk
Chungcheongbuk
Chungcheongnam
Chungnam
Daegu
Gangwon-do
Goyang-si
Gyeonggi-do
Gyeongsang
Gyeongsangnam-do
Incheon
Jeju-Si
Jeonbuk
Kangweon
Kwangju
Kyeonggi
Kyeongsangbuk
Kyeongsangnam
Kyonggi-do
Kyungbuk-Do
Kyunggi-Do
Kyunggi-do
Pusan
Seoul
Sudogwon
Taegu
Taejeon
Taejon-gwangyoksi
Ulsan
Wonju
gwangyoksi
Al Asimah
Hawalli
Mishref
Qadesiya
Safat
Salmiya
al-Ahmadi
al-Farwaniyah
al-Jahra
al-Kuwayt
Batken
Bishkek
Chui
Issyk-Kul
Jalal-Abad
Naryn
Osh
Talas
Attopu
Bokeo
Bolikhamsay
Champasak
Houaphanh
Khammouane
Luang Nam Tha
Luang Prabang
Oudomxay
Phongsaly
Saravan
Savannakhet
Sekong
Viangchan Prefecture
Viangchan Province
Xaignabury
Xiang Khuang
Aizkraukles
Aluksnes
Balvu
Bauskas
Cesu
Daugavpils
Daugavpils City
Dobeles
Gulbenes
Jekabspils
Jelgava
Jelgavas
Jurmala City
Kraslavas
Kuldigas
Liepaja
Liepajas
Limbazhu
Ludzas
Madonas
Ogres
Preilu
Rezekne
Rezeknes
Riga
Rigas
Saldus
Talsu
Tukuma
Valkas
Valmieras
Ventspils
Ventspils City
Beirut
Jabal Lubnan
Mohafazat Liban-Nord
Mohafazat Mont-Liban
Sidon
al-Biqa
al-Janub
an-Nabatiyah
ash-Shamal
Berea
Butha-Buthe
Leribe
Mafeteng
Maseru
Mohale's Hoek
Mokhotlong
Qacha's Nek
Quthing
Thaba-Tseka
Bomi
Bong
Grand Bassa
Grand Cape Mount
Grand Gedeh
Loffa
Margibi
Maryland and Grand Kru
Montserrado
Nimba
Rivercess
Sinoe
Ajdabiya
Fezzan
Banghazi
Darnah
Ghadamis
Gharyan
Misratah
Murzuq
Sabha
Sawfajjin
Surt
Tarabulus
Tarhunah
Tripolitania
Tubruq
Yafran
Zlitan
al-'Aziziyah
al-Fatih
al-Jabal al Akhdar
al-Jufrah
al-Khums
al-Kufrah
an-Nuqat al-Khams
ash-Shati'
az-Zawiyah
Balzers
Eschen
Gamprin
Mauren
Planken
Ruggell
Schaan
Schellenberg
Triesen
Triesenberg
Vaduz
Alytaus
Anyksciai
Kauno
Klaipedos
Marijampoles
Panevezhio
Panevezys
Shiauliu
Taurages
Telshiu
Telsiai
Utenos
Vilniaus
Capellen
Clervaux
Diekirch
Echternach
Esch-sur-Alzette
Grevenmacher
Luxembourg
Mersch
Redange
Remich
Vianden
Wiltz
Macau
Berovo
Bitola
Brod
Debar
Delchevo
Demir Hisar
Gevgelija
Gostivar
Kavadarci
Kichevo
Kochani
Kratovo
Kriva Palanka
Krushevo
Kumanovo
Negotino
Ohrid
Prilep
Probishtip
Radovish
Resen
Shtip
Skopje
Struga
Strumica
Sveti Nikole
Tetovo
Valandovo
Veles
Vinica
Antananarivo
Antsiranana
Fianarantsoa
Mahajanga
Toamasina
Toliary
Balaka
Blantyre City
Chikwawa
Chiradzulu
Chitipa
Dedza
Dowa
Karonga
Kasungu
Lilongwe City
Machinga
Mangochi
Mchinji
Mulanje
Mwanza
Mzimba
Mzuzu City
Nkhata Bay
Nkhotakota
Nsanje
Ntcheu
Ntchisi
Phalombe
Rumphi
Salima
Thyolo
Zomba Municipality
Johor
Kedah
Kelantan
Kuala Lumpur
Labuan
Melaka
Negeri Johor
Negeri Sembilan
Pahang
Penang
Perak
Perlis
Pulau Pinang
Sabah
Sarawak
Selangor
Sembilan
Terengganu
Alif Alif
Alif Dhaal
Baa
Dhaal
Faaf
Gaaf Alif
Gaaf Dhaal
Ghaviyani
Haa Alif
Haa Dhaal
Kaaf
Laam
Lhaviyani
Male
Miim
Nuun
Raa
Shaviyani
Siin
Thaa
Vaav
Bamako
Gao
Kayes
Kidal
Koulikoro
Mopti
Segou
Sikasso
Tombouctou
Gozo and Comino
Inner Harbour
Northern
Outer Harbour
South Eastern
Valletta
Western
Castletown
Douglas
Laxey
Onchan
Peel
Port Erin
Port Saint Mary
Ramsey
Ailinlaplap
Ailuk
Arno
Aur
Bikini
Ebon
Enewetak
Jabat
Jaluit
Kili
Kwajalein
Lae
Lib
Likiep
Majuro
Maloelap
Mejit
Mili
Namorik
Namu
Rongelap
Ujae
Utrik
Wotho
Wotje
Fort-de-France
La Trinite
Le Marin
Saint-Pierre
Adrar
Assaba
Brakna
Dhakhlat Nawadibu
Hudh-al-Gharbi
Hudh-ash-Sharqi
Inshiri
Nawakshut
Qidimagha
Qurqul
Taqant
Tiris Zammur
Trarza
Black River
Eau Coulee
Flacq
Floreal
Grand Port
Moka
Pamplempousses
Plaines Wilhelm
Port Louis
Riviere du Rempart
Rodrigues
Rose Hill
Savanne
Mayotte
Pamanzi
Aguascalientes
Baja California
Baja California Sur
Campeche
Chiapas
Chihuahua
Coahuila
Colima
Distrito Federal
Durango
Estado de Mexico
Guanajuato
Guerrero
Hidalgo
Jalisco
Mexico
Michoacan
Morelos
Nayarit
Nuevo Leon
Oaxaca
Puebla
Queretaro
Quintana Roo
San Luis Potosi
Sinaloa
Sonora
Tabasco
Tamaulipas
Tlaxcala
Veracruz
Yucatan
Zacatecas
Chuuk
Kusaie
Pohnpei
Yap
Balti
Cahul
Chisinau
Chisinau Oras
Edinet
Gagauzia
Lapusna
Orhei
Soroca
Taraclia
Tighina
Transnistria
Ungheni
Fontvieille
La Condamine
Monaco-Ville
Monte Carlo
Arhangaj
Bajan-Olgij
Bajanhongor
Bulgan
Darhan-Uul
Dornod
Dornogovi
Dundgovi
Govi-Altaj
Govisumber
Hentij
Hovd
Hovsgol
Omnogovi
Orhon
Ovorhangaj
Selenge
Suhbaatar
Tov
Ulaanbaatar
Uvs
Zavhan
Montserrat
Agadir
Casablanca
Chaouia-Ouardigha
Doukkala-Abda
Fes-Boulemane
Gharb-Chrarda-Beni Hssen
Guelmim
Kenitra
Marrakech-Tensift-Al Haouz
Meknes-Tafilalet
Oriental
Oujda
Province de Tanger
Rabat-Sale-Zammour-Zaer
Sala Al Jadida
Settat
Souss Massa-Draa
Tadla-Azilal
Tangier-Tetouan
Taza-Al Hoceima-Taounate
Wilaya de Casablanca
Wilaya de Rabat-Sale
Cabo Delgado
Gaza
Inhambane
Manica
Maputo
Maputo Provincia
Nampula
Niassa
Sofala
Tete
Zambezia
Ayeyarwady
Bago
Chin
Kachin
Kayah
Kayin
Magway
Mandalay
Mon
Nay Pyi Taw
Rakhine
Sagaing
Shan
Tanintharyi
Yangon
Caprivi
Erongo
Hardap
Karas
Kavango
Khomas
Kunene
Ohangwena
Omaheke
Omusati
Oshana
Oshikoto
Otjozondjupa
Yaren
Bagmati
Bheri
Dhawalagiri
Gandaki
Janakpur
Karnali
Koshi
Lumbini
Mahakali
Mechi
Narayani
Rapti
Sagarmatha
Seti
Bonaire
Curacao
Saba
Sint Eustatius
Sint Maarten
Amsterdam
Benelux
Drenthe
Flevoland
Friesland
Gelderland
Groningen
Limburg
Noord-Brabant
Noord-Holland
Overijssel
South Holland
Utrecht
Zeeland
Zuid-Holland
Iles
Nord
Sud
Area Outside Region
Auckland
Bay of Plenty
Canterbury
Christchurch
Gisborne
Hawke's Bay
Manawatu-Wanganui
Marlborough
Nelson
Northland
Otago
Rodney
Southland
Taranaki
Tasman
Waikato
Wellington
West Coast
Atlantico Norte
Atlantico Sur
Boaco
Carazo
Chinandega
Chontales
Esteli
Granada
Jinotega
Leon
Madriz
Managua
Masaya
Matagalpa
Nueva Segovia
Rio San Juan
Rivas
Agadez
Diffa
Dosso
Maradi
Niamey
Tahoua
Tillabery
Zinder
Abia
Abuja Federal Capital Territory
Adamawa
Akwa Ibom
Anambra
Bauchi
Bayelsa
Benue
Borno
Cross River
Delta
Ebonyi
Edo
Ekiti
Enugu
Gombe
Imo
Jigawa
Kaduna
Kano
Katsina
Kebbi
Kogi
Kwara
Lagos
Nassarawa
Niger
Ogun
Ondo
Osun
Oyo
Plateau
Rivers
Sokoto
Taraba
Yobe
Zamfara
Niue
Norfolk Island
Northern Islands
Rota
Saipan
Tinian
Akershus
Aust Agder
Bergen
Buskerud
Finnmark
Hedmark
Hordaland
Moere og Romsdal
Nord Trondelag
Nordland
Oestfold
Oppland
Oslo
Rogaland
Soer Troendelag
Sogn og Fjordane
Stavern
Sykkylven
Telemark
Troms
Vest Agder
Vestfold
Østfold
Al Buraimi
Dhufar
Masqat
Musandam
Rusayl
Wadi Kabir
ad-Dakhiliyah
adh-Dhahirah
al-Batinah
ash-Sharqiyah
Baluchistan
Federal Capital Area
Federally administered Tribal
North-West Frontier
Northern Areas
Punjab
Sind
Aimeliik
Airai
Angaur
Hatobohei
Kayangel
Koror
Melekeok
Ngaraard
Ngardmau
Ngaremlengui
Ngatpang
Ngchesar
Ngerchelong
Ngiwal
Peleliu
Sonsorol
Ariha
Bayt Lahm
Bethlehem
Dayr-al-Balah
Ghazzah
Ghazzah ash-Shamaliyah
Janin
Khan Yunis
Nabulus
Qalqilyah
Rafah
Ram Allah wal-Birah
Salfit
Tubas
Tulkarm
al-Khalil
al-Quds
Bocas del Toro
Chiriqui
Cocle
Colon
Darien
Embera
Herrera
Kuna Yala
Los Santos
Ngobe Bugle
Panama
Veraguas
East New Britain
East Sepik
Eastern Highlands
Enga
Fly River
Gulf
Madang
Manus
Milne Bay
Morobe
National Capital District
New Ireland
North Solomons
Oro
Sandaun
Simbu
Southern Highlands
West New Britain
Western Highlands
Alto Paraguay
Alto Parana
Amambay
Asuncion
Boqueron
Caaguazu
Caazapa
Canendiyu
Central
Concepcion
Cordillera
Guaira
Itapua
Misiones
Neembucu
Paraguari
Presidente Hayes
San Pedro
Amazonas
Ancash
Apurimac
Arequipa
Ayacucho
Cajamarca
Cusco
Huancavelica
Huanuco
Ica
Junin
La Libertad
Lambayeque
Lima y Callao
Loreto
Madre de Dios
Moquegua
Pasco
Piura
Puno
San Martin
Tacna
Tumbes
Ucayali
Batangas
Bicol
Bulacan
Cagayan
Caraga
Central Luzon
Central Mindanao
Central Visayas
Cordillera
Davao
Eastern Visayas
Greater Metropolitan Area
Ilocos
Laguna
Luzon
Mactan
Metropolitan Manila Area
Muslim Mindanao
Northern Mindanao
Southern Mindanao
Southern Tagalog
Western Mindanao
Western Visayas
Pitcairn Island
Biale Blota
Dobroszyce
Dolnoslaskie
Dziekanow Lesny
Hopowo
Kartuzy
Koscian
Krakow
Kujawsko-Pomorskie
Lodzkie
Lubelskie
Lubuskie
Malomice
Malopolskie
Mazowieckie
Mirkow
Opolskie
Ostrowiec
Podkarpackie
Podlaskie
Polska
Pomorskie
Poznan
Pruszkow
Rymanowska
Rzeszow
Slaskie
Stare Pole
Swietokrzyskie
Warminsko-Mazurskie
Warsaw
Wejherowo
Wielkopolskie
Wroclaw
Zachodnio-Pomorskie
Zukowo
Abrantes
Acores
Alentejo
Algarve
Braga
Centro
Distrito de Leiria
Distrito de Viana do Castelo
Distrito de Vila Real
Distrito do Porto
Lisboa e Vale do Tejo
Madeira
Norte
Paivas
Arecibo
Bayamon
Carolina
Florida
Guayama
Humacao
Mayaguez-Aguadilla
Ponce
Salinas
San Juan
Doha
Jarian-al-Batnah
Umm Salal
ad-Dawhah
al-Ghuwayriyah
al-Jumayliyah
al-Khawr
al-Wakrah
ar-Rayyan
ash-Shamal
Saint-Benoit
Saint-Denis
Saint-Paul
Saint-Pierre
Alba
Arad
Arges
Bacau
Bihor
Bistrita-Nasaud
Botosani
Braila
Brasov
Bucuresti
Buzau
Calarasi
Caras-Severin
Cluj
Constanta
Covasna
Dambovita
Dolj
Galati
Giurgiu
Gorj
Harghita
Hunedoara
Ialomita
Iasi
Ilfov
Maramures
Mehedinti
Mures
Neamt
Olt
Prahova
Salaj
Satu Mare
Sibiu
Sondelor
Suceava
Teleorman
Timis
Tulcea
Valcea
Vaslui
Vrancea
Adygeja
Aga
Alanija
Altaj
Amur
Arhangelsk
Astrahan
Bashkortostan
Belgorod
Brjansk
Burjatija
Chechenija
Cheljabinsk
Chita
Chukotka
Chuvashija
Dagestan
Evenkija
Gorno-Altaj
Habarovsk
Hakasija
Hanty-Mansija
Ingusetija
Irkutsk
Ivanovo
Jamalo-Nenets
Jaroslavl
Jevrej
Kabardino-Balkarija
Kaliningrad
Kalmykija
Kaluga
Kamchatka
Karachaj-Cherkessija
Karelija
Kemerovo
Khabarovskiy Kray
Kirov
Komi
Komi-Permjakija
Korjakija
Kostroma
Krasnodar
Krasnojarsk
Krasnoyarskiy Kray
Kurgan
Kursk
Leningrad
Lipeck
Magadan
Marij El
Mordovija
Moscow
Moskovskaja Oblast
Moskovskaya Oblast
Moskva
Murmansk
Nenets
Nizhnij Novgorod
Novgorod
Novokusnezk
Novosibirsk
Omsk
Orenburg
Orjol
Penza
Perm
Primorje
Pskov
Pskovskaya Oblast
Rjazan
Rostov
Saha
Sahalin
Samara
Samarskaya
Sankt-Peterburg
Saratov
Smolensk
Stavropol
Sverdlovsk
Tajmyrija
Tambov
Tatarstan
Tjumen
Tomsk
Tula
Tver
Tyva
Udmurtija
Uljanovsk
Ulyanovskaya Oblast
Ust-Orda
Vladimir
Volgograd
Vologda
Voronezh
Butare
Byumba
Cyangugu
Gikongoro
Gisenyi
Gitarama
Kibungo
Kibuye
Kigali-ngali
Ruhengeri
Ascension
Gough Island
Saint Helena
Tristan da Cunha
Christ Church Nichola Town
Saint Anne Sandy Point
Saint George Basseterre
Saint George Gingerland
Saint James Windward
Saint John Capesterre
Saint John Figtree
Saint Mary Cayon
Saint Paul Capesterre
Saint Paul Charlestown
Saint Peter Basseterre
Saint Thomas Lowland
Saint Thomas Middle Island
Trinity Palmetto Point
Anse-la-Raye
Canaries
Castries
Choiseul
Dennery
Gros Inlet
Laborie
Micoud
Soufriere
Vieux Fort
Miquelon-Langlade
Saint-Pierre
Charlotte
Grenadines
Saint Andrew
Saint David
Saint George
Saint Patrick
A'ana
Aiga-i-le-Tai
Atua
Fa'asaleleaga
Gaga'emauga
Gagaifomauga
Palauli
Satupa'itea
Tuamasaga
Va'a-o-Fonoti
Vaisigano
Acquaviva
Borgo Maggiore
Chiesanuova
Domagnano
Faetano
Fiorentino
Montegiardino
San Marino
Serravalle
Agua Grande
Cantagalo
Lemba
Lobata
Me-Zochi
Pague
Al Khobar
Aseer
Ash Sharqiyah
Asir
Central Province
Eastern Province
Ha'il
Jawf
Jizan
Makkah
Najran
Qasim
Tabuk
Western Province
al-Bahah
al-Hudud-ash-Shamaliyah
al-Madinah
ar-Riyad
Dakar
Diourbel
Fatick
Kaolack
Kolda
Louga
Saint-Louis
Tambacounda
Thies
Ziguinchor
Central Serbia
Kosovo and Metohija
Vojvodina
Anse Boileau
Anse Royale
Cascade
Takamaka
Victoria
Eastern
Northern
Southern
Western
Singapore
Banskobystricky
Bratislavsky
Kosicky
Nitriansky
Presovsky
Trenciansky
Trnavsky
Zilinsky
Benedikt
Gorenjska
Gorishka
Jugovzhodna Slovenija
Koroshka
Notranjsko-krashka
Obalno-krashka
Obcina Domzale
Obcina Vitanje
Osrednjeslovenska
Podravska
Pomurska
Savinjska
Slovenian Littoral
Spodnjeposavska
Zasavska
Pitcairn
Central
Choiseul
Guadalcanal
Isabel
Makira and Ulawa
Malaita
Rennell and Bellona
Temotu
Western
Awdal
Bakol
Banadir
Bari
Bay
Galgudug
Gedo
Hiran
Jubbada Hose
Jubbadha Dexe
Mudug
Nugal
Sanag
Shabellaha Dhexe
Shabellaha Hose
Togdher
Woqoyi Galbed
Eastern Cape
Free State
Gauteng
Kempton Park
Kramerville
KwaZulu Natal
Limpopo
Mpumalanga
North West
Northern Cape
Parow
Table View
Umtentweni
Western Cape
South Georgia
Central Equatoria
A Coruna
Alacant
Alava
Albacete
Almeria
Asturias
Avila
Badajoz
Balears
Barcelona
Burgos
Caceres
Cadiz
Cantabria
Castello
Ceuta
Ciudad Real
Cordoba
Cuenca
Girona
Granada
Guadalajara
Guipuzcoa
Huelva
Huesca
Jaen
La Rioja
Las Palmas
Leon
Lleida
Lugo
Madrid
Malaga
Melilla
Murcia
Navarra
Ourense
Pais Vasco
Palencia
Pontevedra
Salamanca
Segovia
Sevilla
Soria
Tarragona
Santa Cruz de Tenerife
Teruel
Toledo
Valencia
Valladolid
Vizcaya
Zamora
Zaragoza
Amparai
Anuradhapuraya
Badulla
Boralesgamuwa
Colombo
Galla
Gampaha
Hambantota
Kalatura
Kegalla
Kilinochchi
Kurunegala
Madakalpuwa
Maha Nuwara
Malwana
Mannarama
Matale
Matara
Monaragala
Mullaitivu
North Eastern Province
North Western Province
Nuwara Eliya
Polonnaruwa
Puttalama
Ratnapuraya
Southern Province
Tirikunamalaya
Tuscany
Vavuniyawa
Western Province
Yapanaya
kadawatha
A'ali-an-Nil
Bahr-al-Jabal
Central Equatoria
Gharb Bahr-al-Ghazal
Gharb Darfur
Gharb Kurdufan
Gharb-al-Istiwa'iyah
Janub Darfur
Janub Kurdufan
Junqali
Kassala
Nahr-an-Nil
Shamal Bahr-al-Ghazal
Shamal Darfur
Shamal Kurdufan
Sharq-al-Istiwa'iyah
Sinnar
Warab
Wilayat al Khartum
al-Bahr-al-Ahmar
al-Buhayrat
al-Jazirah
al-Khartum
al-Qadarif
al-Wahdah
an-Nil-al-Abyad
an-Nil-al-Azraq
ash-Shamaliyah
Brokopondo
Commewijne
Coronie
Marowijne
Nickerie
Para
Paramaribo
Saramacca
Wanica
Svalbard
Hhohho
Lubombo
Manzini
Shiselweni
Alvsborgs Lan
Angermanland
Blekinge
Bohuslan
Dalarna
Gavleborg
Gaza
Gotland
Halland
Jamtland
Jonkoping
Kalmar
Kristianstads
Kronoberg
Norrbotten
Orebro
Ostergotland
Saltsjo-Boo
Skane
Smaland
Sodermanland
Stockholm
Uppsala
Varmland
Vasterbotten
Vastergotland
Vasternorrland
Vastmanland
Vastra Gotaland
Aargau
Appenzell Inner-Rhoden
Appenzell-Ausser Rhoden
Basel-Landschaft
Basel-Stadt
Bern
Canton Ticino
Fribourg
Geneve
Glarus
Graubunden
Heerbrugg
Jura
Kanton Aargau
Luzern
Morbio Inferiore
Muhen
Neuchatel
Nidwalden
Obwalden
Sankt Gallen
Schaffhausen
Schwyz
Solothurn
Thurgau
Ticino
Uri
Valais
Vaud
Vauffelin
Zug
Zurich
Aleppo
Dar'a
Dayr-az-Zawr
Dimashq
Halab
Hamah
Hims
Idlib
Madinat Dimashq
Tartus
al-Hasakah
al-Ladhiqiyah
al-Qunaytirah
ar-Raqqah
as-Suwayda
Changhua County
Chiayi County
Chiayi City
Taipei City
Hsinchu County
Hsinchu City
Hualien County
Kaohsiung City
Keelung City
Kinmen County
Miaoli County
Nantou County
Penghu County
Pingtung County
Taichung City
Tainan City
New Taipei City
Taitung County
Taoyuan City
Yilan County
YunLin County
Dushanbe
Gorno-Badakhshan
Karotegin
Khatlon
Sughd
Arusha
Dar es Salaam
Dodoma
Iringa
Kagera
Kigoma
Kilimanjaro
Lindi
Mara
Mbeya
Morogoro
Mtwara
Mwanza
Pwani
Rukwa
Ruvuma
Shinyanga
Singida
Tabora
Tanga
Zanzibar and Pemba
Amnat Charoen
Ang Thong
Bangkok
Buri Ram
Chachoengsao
Chai Nat
Chaiyaphum
Changwat Chaiyaphum
Chanthaburi
Chiang Mai
Chiang Rai
Chon Buri
Chumphon
Kalasin
Kamphaeng Phet
Kanchanaburi
Khon Kaen
Krabi
Krung Thep
Lampang
Lamphun
Loei
Lop Buri
Mae Hong Son
Maha Sarakham
Mukdahan
Nakhon Nayok
Nakhon Pathom
Nakhon Phanom
Nakhon Ratchasima
Nakhon Sawan
Nakhon Si Thammarat
Nan
Narathiwat
Nong Bua Lam Phu
Nong Khai
Nonthaburi
Pathum Thani
Pattani
Phangnga
Phatthalung
Phayao
Phetchabun
Phetchaburi
Phichit
Phitsanulok
Phra Nakhon Si Ayutthaya
Phrae
Phuket
Prachin Buri
Prachuap Khiri Khan
Ranong
Ratchaburi
Rayong
Roi Et
Sa Kaeo
Sakon Nakhon
Samut Prakan
Samut Sakhon
Samut Songkhran
Saraburi
Satun
Si Sa Ket
Sing Buri
Songkhla
Sukhothai
Suphan Buri
Surat Thani
Surin
Tak
Trang
Trat
Ubon Ratchathani
Udon Thani
Uthai Thani
Uttaradit
Yala
Yasothon
Centre
Kara
Maritime
Plateaux
Savanes
Atafu
Fakaofo
Nukunonu
Eua
Ha'apai
Niuas
Tongatapu
Vava'u
Arima-Tunapuna-Piarco
Caroni
Chaguanas
Couva-Tabaquite-Talparo
Diego Martin
Glencoe
Penal Debe
Point Fortin
Port of Spain
Princes Town
Saint George
San Fernando
San Juan
Sangre Grande
Siparia
Tobago
Aryanah
Bajah
Bin 'Arus
Binzart
Gouvernorat de Ariana
Gouvernorat de Nabeul
Gouvernorat de Sousse
Hammamet Yasmine
Jundubah
Madaniyin
Manubah
Monastir
Nabul
Qabis
Qafsah
Qibili
Safaqis
Sfax
Sidi Bu Zayd
Silyanah
Susah
Tatawin
Tawzar
Tunis
Zaghwan
al-Kaf
al-Mahdiyah
al-Munastir
al-Qasrayn
al-Qayrawan
Adana
Adiyaman
Afyon
Agri
Aksaray
Amasya
Ankara
Antalya
Ardahan
Artvin
Aydin
Balikesir
Bartin
Batman
Bayburt
Bilecik
Bingol
Bitlis
Bolu
Burdur
Bursa
Canakkale
Cankiri
Corum
Denizli
Diyarbakir
Duzce
Edirne
Elazig
Erzincan
Erzurum
Eskisehir
Gaziantep
Giresun
Gumushane
Hakkari
Hatay
Icel
Igdir
Isparta
Istanbul
Izmir
Kahramanmaras
Karabuk
Karaman
Kars
Karsiyaka
Kastamonu
Kayseri
Kilis
Kirikkale
Kirklareli
Kirsehir
Kocaeli
Konya
Kutahya
Lefkosa
Malatya
Manisa
Mardin
Mugla
Mus
Nevsehir
Nigde
Ordu
Osmaniye
Rize
Sakarya
Samsun
Sanliurfa
Siirt
Sinop
Sirnak
Sivas
Tekirdag
Tokat
Trabzon
Tunceli
Usak
Van
Yalova
Yozgat
Zonguldak
Ahal
Asgabat
Balkan
Dasoguz
Lebap
Mari
Grand Turk
South Caicos and East Caicos
Funafuti
Nanumanga
Nanumea
Niutao
Nui
Nukufetau
Nukulaelae
Vaitupu
Central
Eastern
Northern
Western
Cherkas'ka
Chernihivs'ka
Chernivets'ka
Crimea
Dnipropetrovska
Donets'ka
Ivano-Frankivs'ka
Kharkiv
Kharkov
Khersonska
Khmel'nyts'ka
Kirovohrad
Krym
Kyyiv
Kyyivs'ka
L'vivs'ka
Luhans'ka
Mykolayivs'ka
Odes'ka
Odessa
Poltavs'ka
Rivnens'ka
Sevastopol'
Sums'ka
Ternopil's'ka
Volyns'ka
Vynnyts'ka
Zakarpats'ka
Zaporizhia
Zhytomyrs'ka
Abu Zabi
Ajman
Dubai
Ras al-Khaymah
Sharjah
Sharjha
Umm al Qaywayn
al-Fujayrah
ash-Shariqah
Aberdeen
Aberdeenshire
Argyll
Armagh
Bedfordshire
Belfast
Berkshire
Birmingham
Brechin
Bridgnorth
Bristol
Buckinghamshire
Cambridge
Cambridgeshire
Channel Islands
Cheshire
Cleveland
Co Fermanagh
Conwy
Cornwall
Coventry
Craven Arms
Cumbria
Denbighshire
Derby
Derbyshire
Devon
Dial Code Dungannon
Didcot
Dorset
Dunbartonshire
Durham
East Dunbartonshire
East Lothian
East Midlands
East Sussex
East Yorkshire
England
Essex
Fermanagh
Fife
Flintshire
Fulham
Gainsborough
Glocestershire
Gwent
Hampshire
Hants
Herefordshire
Hertfordshire
Ireland
Isle Of Man
Isle of Wight
Kenford
Kent
Kilmarnock
Lanarkshire
Lancashire
Leicestershire
Lincolnshire
Llanymynech
London
Ludlow
Manchester
Mayfair
Merseyside
Mid Glamorgan
Middlesex
Mildenhall
Monmouthshire
Newton Stewart
Norfolk
North Humberside
North Yorkshire
Northamptonshire
Northants
Northern Ireland
Northumberland
Nottinghamshire
Oxford
Powys
Roos-shire
SUSSEX
Sark
Scotland
Scottish Borders
Shropshire
Somerset
South Glamorgan
South Wales
South Yorkshire
Southwell
Staffordshire
Strabane
Suffolk
Surrey
Sussex
Twickenham
Tyne and Wear
Tyrone
Utah
Wales
Warwickshire
West Lothian
West Midlands
West Sussex
West Yorkshire
Whissendine
Wiltshire
Wokingham
Worcestershire
Wrexham
Wurttemberg
Yorkshire
Alabama
Alaska
Arizona
Arkansas
Byram
California
Cokato
Colorado
Connecticut
Delaware
District of Columbia
Florida
Georgia
Hawaii
Idaho
Illinois
Indiana
Iowa
Kansas
Kentucky
Louisiana
Lowa
Maine
Maryland
Massachusetts
Medfield
Michigan
Minnesota
Mississippi
Missouri
Montana
Nebraska
Nevada
New Hampshire
New Jersey
New Jersy
New Mexico
New York
North Carolina
North Dakota
Ohio
Oklahoma
Ontario
Oregon
Pennsylvania
Ramey
Rhode Island
South Carolina
South Dakota
Sublimity
Tennessee
Texas
Trimble
Utah
Vermont
Virginia
Washington
West Virginia
Wisconsin
Wyoming
United States Minor Outlying I
Artigas
Canelones
Cerro Largo
Colonia
Durazno
FLorida
Flores
Lavalleja
Maldonado
Montevideo
Paysandu
Rio Negro
Rivera
Rocha
Salto
San Jose
Soriano
Tacuarembo
Treinta y Tres
Andijon
Buhoro
Buxoro Viloyati
Cizah
Fargona
Horazm
Kaskadar
Korakalpogiston
Namangan
Navoi
Samarkand
Sirdare
Surhondar
Toskent
Malampa
Penama
Sanma
Shefa
Tafea
Torba
Vatican City State (Holy See)
Amazonas
Anzoategui
Apure
Aragua
Barinas
Bolivar
Carabobo
Cojedes
Delta Amacuro
Distrito Federal
Falcon
Guarico
Lara
Merida
Miranda
Monagas
Nueva Esparta
Portuguesa
Sucre
Tachira
Trujillo
Vargas
Yaracuy
Zulia
Bac Giang
Binh Dinh
Binh Duong
Da Nang
Dong Bang Song Cuu Long
Dong Bang Song Hong
Dong Nai
Dong Nam Bo
Duyen Hai Mien Trung
Hanoi
Hung Yen
Khu Bon Cu
Long An
Mien Nui Va Trung Du
Thai Nguyen
Thanh Pho Ho Chi Minh
Thu Do Ha Noi
Tinh Can Tho
Tinh Da Nang
Tinh Gia Lai
Anegada
Jost van Dyke
Tortola
Saint Croix
Saint John
Saint Thomas
Alo
Singave
Wallis
Bu Jaydur
Wad-adh-Dhahab
al-'Ayun
as-Samarah
'Adan
Abyan
Dhamar
Hadramaut
Hajjah
Hudaydah
Ibb
Lahij
Ma'rib
Madinat San'a
Sa'dah
Sana
Shabwah
Ta'izz
al-Bayda
al-Hudaydah
al-Jawf
al-Mahrah
al-Mahwit
Central Serbia
Kosovo and Metohija
Montenegro
Republic of Serbia
Serbia
Vojvodina
Central
Copperbelt
Eastern
Luapala
Lusaka
North-Western
Northern
Southern
Western
Bulawayo
Harare
Manicaland
Mashonaland Central
Mashonaland East
Mashonaland West
Masvingo
Matabeleland North
Matabeleland South
Midlands
Lienchiang County
I accept the Terms of Service and Privacy Policy
Register