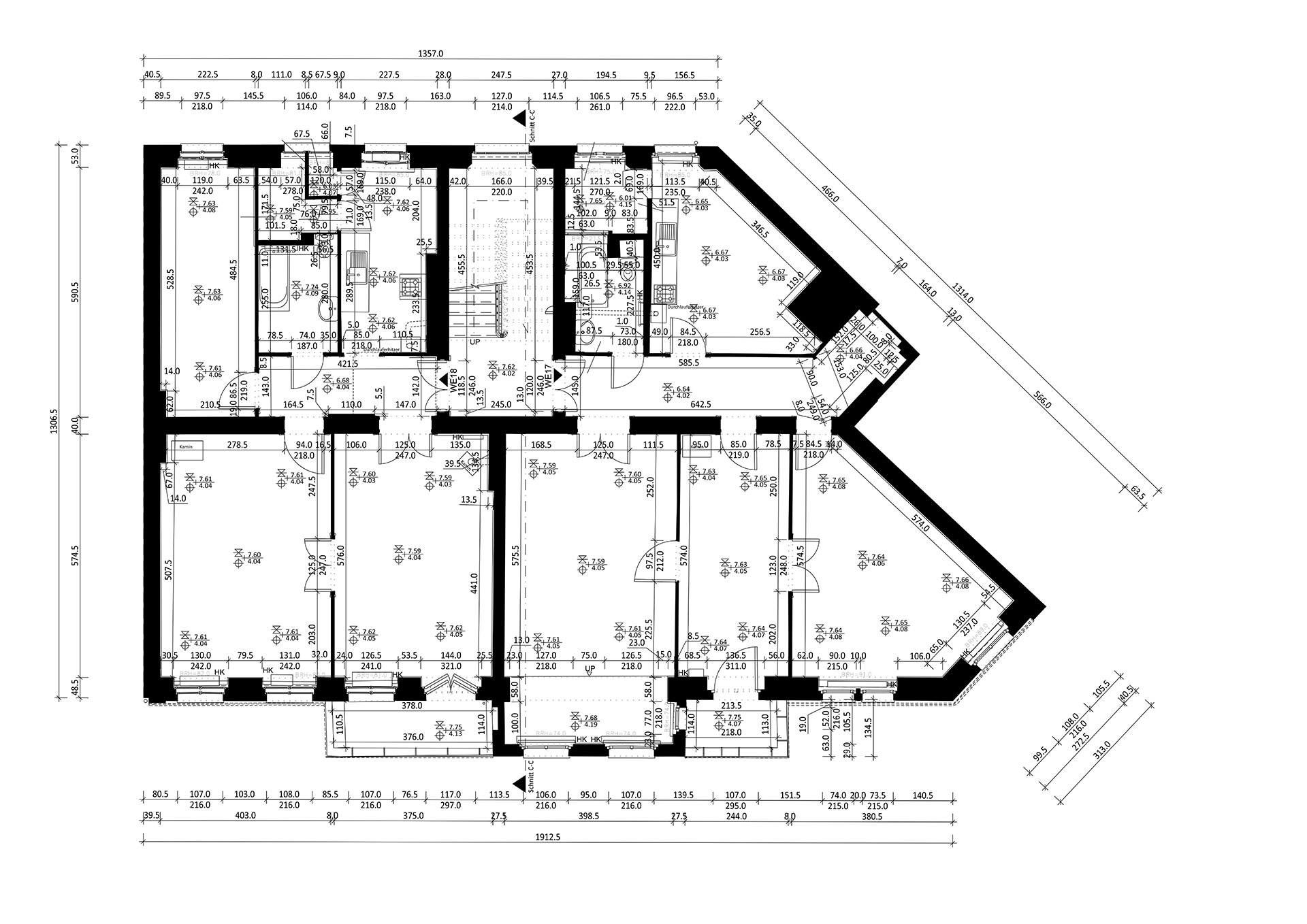
From paper archives to digital CAD files. Creation of CAD plans.

Digitization of existing plans

  • Transform Paper Plans to Digital
  • Precision Vectorization for Accuracy
  • Streamline Project Archiving
  • Upgrade Old CAD Files
  • Fast, Reliable Conversion Services

We Specialize

We specialize in scanning and creating CAD files of various floor plans, construction drawings, and as-built plans, whether it be for individual paper plans or your entire archive. Our services also include vectorizing provided scan files and ensuring they meet our high standards before delivery. Rest assured that the CAD files we provide are suitable for immediate use, whether you need to make changes in your CAD program or import them into your CAFM system.

Our services in the field of vectorization

  • Archival evaluation
  • Collaboration and refinement of plans for future steps.
  • Development of protocols and standards for CAD implementation
  • Standardizing CAD templates
  • Generating accurate CAD files through revision and design.
  • Accurate alignment of items to designated measurements
  • Ensuring high quality with the aid of automated testing tools.
  • Generating CAD Plans that meet your specifications and, if feasible, are based on existing data.
  • Ensuring the availability of data in appropriate formats for import.